Negozio monolocale 150mq

Dati annuncio : Affitto Negozio, Milano
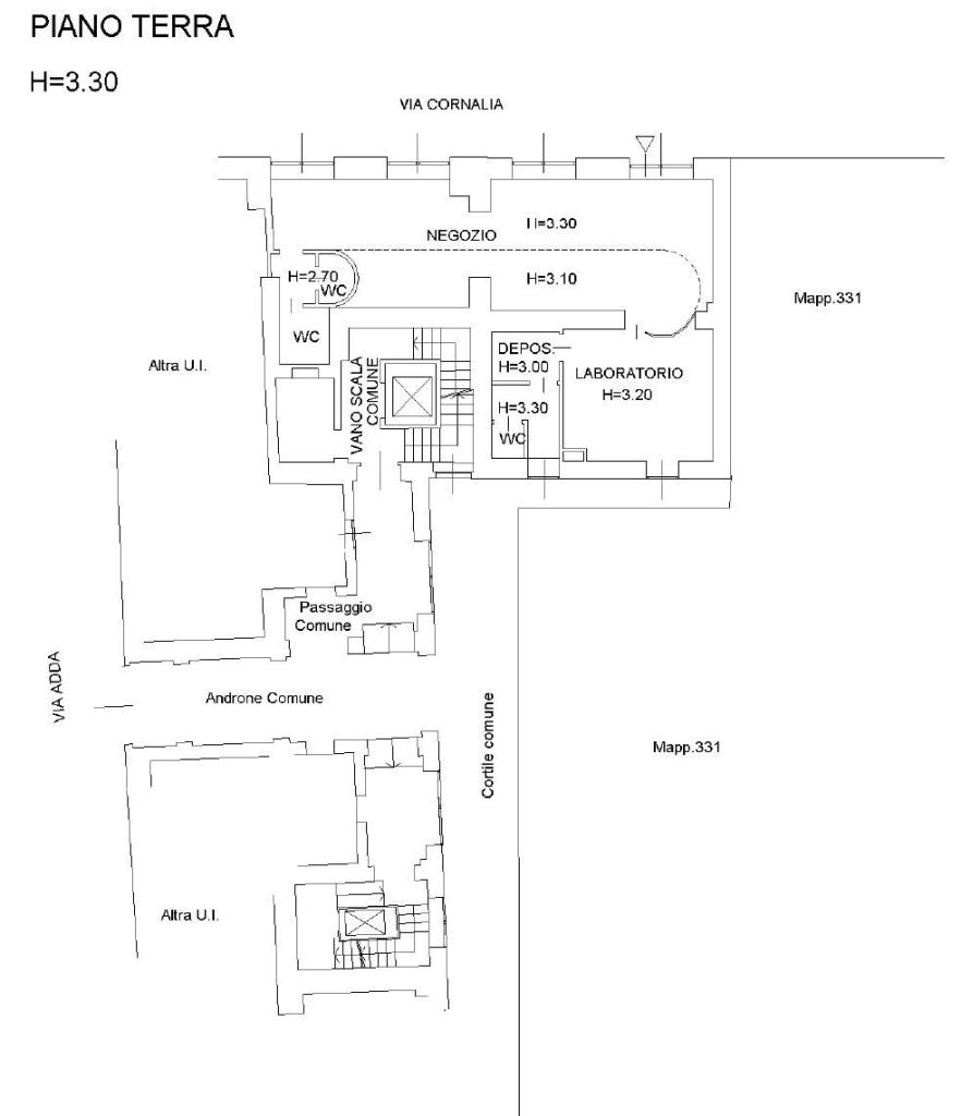
MILANO VIA CORNALIA 13 - Nell´affascinante quartiere di Porta Nuova, simbolo della Milano contemporanea, Falco immobiliare propone in esclusiva la LOCAZIONE NEGOZIO 4 VETRINE 150 MQ a piano terreno, oltre a deposito a piano interrato di ulteriori 45 mq ca. POSSIBILITÀ DI CANNA FUMARIA. L´immobile si presenta come un open-space ed è ideale per attività di vendita o di servizi, showroom espositivo, ufficio di rappresentanza. Consegna shell and core, tempistiche da concordare, possibilità di personalizzazione dello stato di consegna. L´intero isolato è oggetto di un´imminente radicale trasformazione, grazie a diversi interventi di valorizzazione e recupero edilizio volti a riqualificare l´area e conferirle maggior valore e pregio architettonico. Solo imprenditori ed aziende referenziate. Richieste opportune garanzie e referenze. IN LOCAZIONE A 78.000 euro annui oltre spese e Iva.
- PropostaOffro
- ContrattoAffitto
- Prezzo6.500,00 €
- Vani1
- Mq totali150
- Tipologia immobileNegozio
- ProvinciaMilano
- ComuneMilano
- Data12-11-2025 05:08:56
- CodiceEA-F8CD63











