Negozio monolocale 185mq

Dati annuncio : Vendita Negozio, Lecco
´´NEGOZIO VIA OSLAVIA 2´´
LECCO S. Giovanni - Già occupata da inquilino con redditività annua consolidata, questa proposta è rivolta a clienti investitori.
La visibilità della soluzione commerciale è garantita da un lato interamente occupato da vetrine, che ne consentono l´esposizione diretta al traffico pedonale e veicolare.
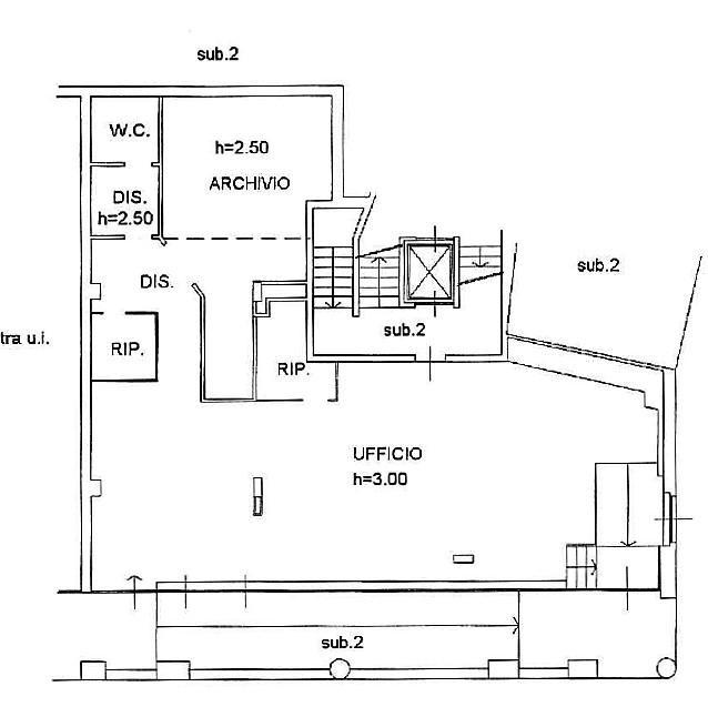
Il negozio consiste in ambiente unico openspace, servito da bagno e ripostiglio, per una superficie complessiva di circa 169mq.
Versatile per destinazione d´uso, l´immobile è usufruibile come negozio per molteplici realtà commerciali o come ufficio, anche per società di servizi.
Questa soluzione si inserisce al piano terra di una palazzina edificata a fine anni 90 e progettata dall´ arch. Bruno Bianchi, caratterizzata da particolari costruttivi moderni. Possibilità di acquisto box al piano interrato, accessibile direttamente dal vano scale interno. Ci troviamo in zona San Giovanni, su via Oslavia, all´angolo con via Partigiani, in prossimità di svariati servizi cittadini.
Ulteriori informazioni in agenzia.
- PropostaOffro
- ContrattoVendita
- Prezzo295.000,00 €
- Vani1
- Mq totali185
- Bagni1
- Classe energeticaE
- Classe energetica (ipe)4628
- Classe energetica (unità di misura)Kwh/m³a
- Tipologia immobileNegozio
- ProvinciaLecco
- ComuneLecco
- Data18-12-2025 06:32:08
- CodiceEA-330F90











