Piazza Vittorio Veneto 1 5 vani 140mq
Dati annuncio : Vendita Pentavani, Altare
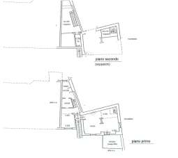
Proprietà per la quota di 1000/1000 di appartamento, box e cantina, della superficie commerciale di mq 140,10, articolato su tre piani. Il piano interrato, cantina, è composto da un unico vano adibito a locale sgombero; il piano terra, box, è composto da un unico ampio locale adibito a box e da un piccolo ripostiglio; il piano primo, abitativo, è costituito dall’appartamento composto da ingresso, soggiorno, cucina, camera, disimpegno, cabina armadio, bagno e terrazzo.
- Il Prezzo visualizzato è la Base d´Asta in quanto l’immobile è oggetto di esecuzione immobiliare venduto tramite Asta Giudiziaria.
- L´immobile aggiudicato, viene venduto libero e sgombro da persone cose ed ipoteche nello stato di fatto e di diritto in cui si trova.
- Non rappresentiamo il Tribunale, ma lavoriamo nell´esclusivo interesse del potenziale acquirente per garantire un acquisto sicuro.
- I consulenti di ASTE ITALIA ti assisteranno in tutte le attività dell´iter giudiziario dalla visita dell´immobile fino alla consegna chiavi.
- Contatta il nostro Servizio Clienti , i nostri operatori sono a disposizione per chiarire i molteplici dubbi per partecipare alle ASTE.
- PropostaOffro
- ContrattoVendita
- Prezzo51.638,00 €
- Vani5
- Numero piani3
- Mq terrazzo12
- Mq cantina11
- Mq totali140
- Camere1
- Bagni1
- Classe energeticaG
- Classe energetica (ipe)0.0
- StatoDiscreto
- AscensoreNo
- CucinaAbitabile
- TerrazzoSi
- GiardinoNs
- CantinaSi
- RiscaldamentoAutonomo
- ProvinciaSavona
- ComuneAltare
- IndirizzoPiazza vittorio veneto 1
- CodiceEA-8819F9






