POGGIOLINO 8 vani 250mq
Dati annuncio : Vendita Multivani, Figline e Incisa Valdarno
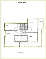
Figline Valdarno, in zona residenziale, proponiamo in vendita villa della tipologia bifamiliare di circa 230 mq, su due livelli, composto al piano terra da ingresso che conduce ad un ampio soggiorno, cucina abitabile, 2 camere matrimoniali, studio e un bagno; al primo piano una camera ensuite con cabina armadio, ulteriori due camere matrimoniali ed un´altro bagno.
Completa la proprietà tre terrazze, un giardino privato circostante di circa 500 mq, garage di 35 mq, cantine al piano seminterrato.
Per ulteriori informazioni e per fissare una visita potete contattarci allo 055959418, dalle 9:30 alle 13:00 e dalle 15:00 alle 19:00 dal lunedì al venerdì, oppure inviando una richiesta alla sezione ´´CONTATTI´´.
Lavoriamo da anni sul mercato degli immobili del Valdarno Fiorentino e comuni limitrofi e oggi siamo una realtà consolidata in grado di offrire ai nostri clienti un servizio altamente professionale, consentendo loro di acquistare in modo sicuro la ´´casa dei sogni´´. Saremo a Vostra completa disposizione per trovare, scegliere e consigliare l´immobile che fa al caso Vostro.
Tutti i dettagli e i dati tecnici indicati nelle descrizioni pubblicate sono stati forniti in buona fede in seguito a sopralluogo e sulla base della documentazione disponibile. Non ci assumiamo alcuna responsabilità per eventuali inesattezze.
Si precisa che, per proteggere la privacy dei proprietari, il punto indicato sulla mappa è puramente indicativo.
Classe Energetica: G - IPE: 0.00kWh/mq anno
- PropostaOffro
- ContrattoVendita
- Prezzo400.000,00 €
- Vani8
- Numero piani2
- Piano13
- Mq giardino500
- Mq totali250
- Camere5
- Bagni3
- Posti auto2
- Classe energeticaG
- StatoBuono
- AscensoreNo
- Tipo costruzioneResidenziale
- CucinaAbitabile
- TerrazzoSi
- GiardinoPrivato
- CantinaSi
- BoxBox doppio
- ProvinciaFirenze
- ComuneFigline e incisa valdarno
- Data19-11-2025 05:38:09
- CodiceEA-666612







