E' in corso la verifica sull'accuratezza dei dati del post
quadrilocale 110mq
499.000,00 €
0 Piace
0 Piace
Dati annuncio : Vendita Quadrivani, Sanremo
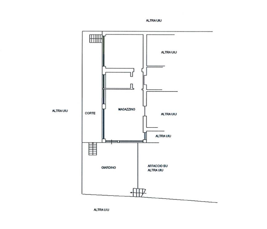
In via privata alle porte di Sanremo, lato Ovest, in posizione molto tranquilla pur essendo vicinissima al mare e alla pista ciclabile, proponiamo in vendita una villetta su due livelli così composta: ingresso nel soggiorno con cucina a vista, tre camere matrimoniali, tripli servizi, uno dei quali molto grande, terrazza e, al piano seminterrato, c´è una grande cantina di 20 mq., un garage di 25 e una corte con cancello e ingresso carrabile. Questa parte seminterrata necessita di ristrutturazione. E´ anche possibile prevedere un frazionamento in due unità abitative. L´appartamento è in classe B.
- PropostaOffro
- ContrattoVendita
- Prezzo499.000,00 €
- Anno1958
- Vani4
- Numero piani1
- Mq totali110
- Camere1
- Bagni3
- Classe energeticaB
- Classe energetica (ipe)46.42
- StatoDiscreto
- AscensoreNo
- CucinaAngolo cottura
- TerrazzoNo
- GiardinoNd
- CantinaNo
- RiscaldamentoAutonomo
- ProvinciaImperia
- ComuneSanremo
- CodiceEA-D8E1C1