quadrilocale 70mq

128.000,00 €
0 Piace
0 Piace

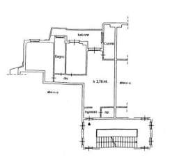
Comune di Luni nella graziosa Zona di ´´Luni Mare´´ appartamento situato in zona tranquilla e ben servita, con ottima esposizione a circa 1500 metri dalle spiagge. A metà strada tra la vivace Versilia e il Golfo dei Poeti ,soluzione subito abitabile in buono stato anche nelle parti comuni di mq 70 posto al secondo piano di piccola palazzina, parte di un tranquillo complesso residenziale. L´ appartamento si compone di un luminoso soggiorno con uscita su terrazza abitabile, Cucinotto, Due camere da letto spaziose di cui una matrimoniale e una cameretta , un ripostiglio, un grande bagno con vasca e finestra. Riscaldamento autonomo. L´immobile si presenta in un buono stato conservativo e recentemente sono stati fatti alcuni lavori di manutenzione (installazione di nuova caldaia a condensazione, installazione di nuovi infissi doppio vetro/alluminio in sala, cucina e camera). Posto auto assegnato coperto. Cantina. Ideale per essere Vissuto e Goduto o per essere messo a reddito come ottimo investimento Immobiliare.

Per tutelare la privacy dei nostri clienti vi informiamo che l’indirizzo e’ approssimativo e le informazioni e i valori presenti nell’annuncio non costituiscono, in alcun modo, elemento contrattuale. Le informazioni dettagliate e specifiche dell’immobile verranno fornite compilando il form dell’agenzia o contattandoci telefonicamente.

  • PropostaOffro
  • ContrattoVendita
  • Prezzo128.000,00 €
  • Vani4
  • Numero piani1
  • Mq totali70
  • Camere2
  • Bagni1
  • Classe energeticaG
  • Classe energetica (ipe)175.0
  • StatoAbitabile
  • AscensoreNo
  • CucinaCucinotto
  • TerrazzoSi
  • GiardinoNs
  • CantinaSi
  • RiscaldamentoAutonomo
  • BoxSi
  • Spese condominiali38.0
  • ProvinciaLa spezia
  • ComuneLuni
  • CodiceEA-047144