E' in corso la verifica sull'accuratezza dei dati del post
quadrilocale 70mq
198.000,00 €
0 Piace
0 Piace
Dati annuncio : Vendita Quadrivani, Sarzana
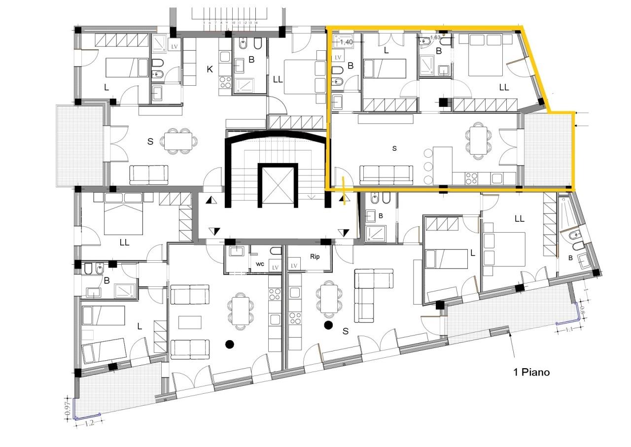
SARZANA CENTRO, ULTIMA DISPONIBILITA´ di appartamento al P.1° con ascensore, senza barriere architettoniche. L´abitazione è composta da ampio soggiorno con angolo cottura e spaziosa terrazza pranzabile, disimpegno, 2 camere da letto, 2 bagni. Termoautonomo. Luminoso. Possibilità di acquisto del posto auto al piano interrato servito da ascensore. Dotato di aria condizionata. Portone blindato.
- PropostaOffro
- ContrattoVendita
- Prezzo198.000,00 €
- Anno2019
- Vani4
- Numero piani1
- Mq totali70
- Camere2
- Bagni2
- Classe energeticaA
- Classe energetica (ipe)0.0
- StatoDi nuova costruzione
- AscensoreNo
- CucinaAngolo cottura
- TerrazzoSi
- GiardinoNs
- CantinaNo
- RiscaldamentoAutonomo
- ProvinciaLa spezia
- ComuneSarzana
- CodiceEA-CF64A8