quadrilocale 73mq
Dati annuncio : Vendita Quadrivani, Empoli
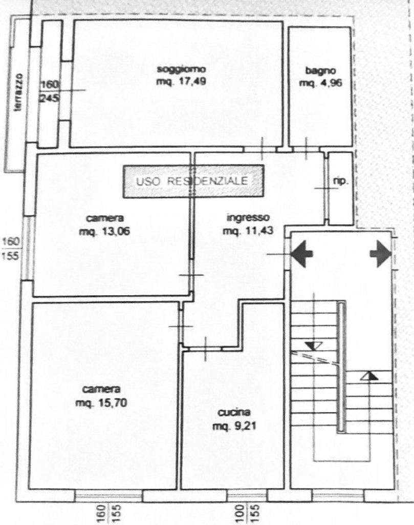
Ampio quadrilocale situato in strada tranquilla e defilata, ma vicino a tutti i servizi essenziali come le poste e il centro commerciale di Empoli. Questo accogliente immobile si trova al primo piano di un piccolo condominio di soli quattro appartamenti.
L´ abitazione è composta da due spaziose camere da letto, un luminoso soggiorno con balcone, una cucina abitabile, un bagno e un comodo ripostiglio, tuttavia il taglio funzionale permette di riorganizzare gli ambienti a piacimento. Inoltre, la proprietà include un doppio garage carrabile, un vero lusso in una zona centrale molto ambita.
L´ immobile necessita di lavori di riammodernamento e rinfrescamento, ma offre un´ottima base per creare il proprio rifugio urbano nel cuore della città. Non lasciarti sfuggire questa fantastica opportunità di vivere in un ambiente tranquillo e al tempo stesso vicino a tutte le comodità della vita quotidiana. Classe Energetica: G - IPE: 175.00kWh/mq anno
- PropostaOffro
- ContrattoVendita
- Prezzo145.000,00 €
- Vani4
- Numero piani3
- Piano13
- Mq box30
- Mq totali73
- Camere2
- Bagni1
- Posti auto1
- Classe energeticaG
- Classe energetica (ipe)175.0
- AscensoreNo
- Tipo costruzioneResidenziale
- CucinaAbitabile
- TerrazzoNo
- GiardinoNessuno
- CantinaNo
- RiscaldamentoAutonomo
- BoxBox singolo
- DisponibilitLibero
- Spese condominiali50
- Cadenza spese condominialiMensili
- ProvinciaFirenze
- ComuneEmpoli
- Data18-08-2025 06:03:15
- CodiceEA-04B908

