quadrilocale 750mq
60.000,00 €
0 Piace
0 Piace
Dati annuncio : Vendita Quadrivani, Beverino
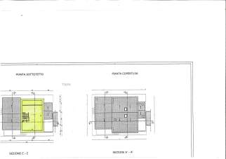
Terreno edificabile Beverino. In vendita terreno edificabile di circa 750 mq, con progetto approvato ed oneri pagati per la costruzione di una villetta indipendente, tutta su un piano, oltre al sottotetto (circa mq 25) e due ampie cantine e due locali tecnici al piano interrato (circa mq 72), collegati internamente. L´abitazione principale si sviluppa tutta al piano terra (circa 66 mq), con ingresso in soggiorno, cucina abitabile, due camere e bagno. Il giardino di circa 640 mq è recintato e in parte piastrellato per comodo accesso con auto e parcheggio. Ottime rifiniture. Posizione comoda.Possibilità di acquisto chiavi in mano.
- PropostaOffro
- ContrattoVendita
- Prezzo60.000,00 €
- Vani4
- Numero piani1
- Mq giardino250
- Mq totali750
- Camere2
- Bagni1
- Classe energeticaNd
- Classe energetica (ipe)0.0
- StatoIn costruzione
- AscensoreNo
- CucinaAbitabile
- TerrazzoNo
- GiardinoNd
- CantinaSi
- BoxSi
- ProvinciaLa spezia
- ComuneBeverino
- Data18-08-2025 05:07:34
- CodiceEA-D34EF9







