Rosignano Marittimo 6 vani 127mq

Dati annuncio : Vendita Esavani, Rosignano Marittimo
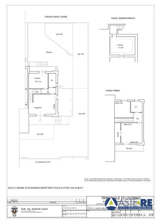
Rosignano Solvay-Castiglioncello LI, Italia, Rosignano Marittimo Livorno Via Nilde Iotti, 2, 57016\nAppartamento ad uso civile abitazione, dislocato sui piani seminterrato, terreno e primo, composto: al piano terreno da ingresso - soggiorno con angolo cottura, disimpegno, ripostiglio, camera, bagno, due balconi, da uno dei quali si accede al resede esclusivo ad uso giardino che si sviluppa su due lati dell´immobile; al piano primo da disimpegno, due camere una delle quali con stanza armadi e terrazzo, bagno; al piano seminterrato da un locale ad uso cantina.\n\nPossibilit and #224; MUTUO al 100% Opportunit and #224; Unica:L´immobile attualmente in vendita dal Tribunale rappresenta un´occasione imperdibile. Partecipa e scopri la possibilit and #224; di acquisire la propriet and #224; prima dell´asta, garantendoti un vantaggio competitivo nel mercato immobiliare.Servizio Esclusivo di Assistenza:Il nostro annuncio and #232; incentrato sulla vendita del servizio di assistenza personalizzata, progettato per rendere il tuo acquisto sicuro e conveniente. Il nostro team esperto and #232; pronto ad accompagnarti in ogni fase, garantendoti una transazione senza problemi.Vieni a trovarci nei nostri uffici per una consulenza senza impegno. Ti forniamo le informazioni necessarie per prendere decisioni importanti e sfruttare al massimo queste straordinarie opportunit and #224;.Realizza il tuo sogno immobiliare con noi!
- PropostaOffro
- ContrattoVendita
- Prezzo118.125,00 €
- Vani6
- Mq totali127
- Camere5
- Bagni2
- Balconi2
- Classe energeticaN.d.
- StatoLibero
- Tipo costruzione[residenziale, residenziale]
- DisponibilitLibero
- ProvinciaLivorno
- ComuneRosignano marittimo
- Data03-07-2025 05:32:31
- CodiceEA-FF21B9