Rustico / Casale 10 vani 450mq

Dati annuncio : Vendita Rustico / Casale, Retorbido
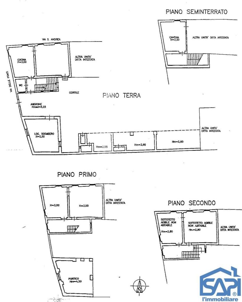
Nel Comune di Retorbido, proponiamo intero fabbricato casale/rustico su 2 piani f.t. e 1 piano interrato, oltre a porticati, magazzini/deposito.
L´immobile necessita di completa ristrutturazione interna ed esterna. Nell´anno 2006 c.a. sono stati effettuate alcune opere di ristrutturazione come il rifacimento del tetto, solette al 1° piano, creazione di vespaio e realizzazione di spazi interni come stanze e bagni. All´interno non esistono impianti elettrici ed idraulici.
La caratteristica principale dell´immobile è che offre la possibilità di realizzare varie tipologie abitative, come ad esempio un´unica unità immobiliare su più livelli con varie pertinenze, oppure la possibilità di realizzare più appartamenti al suo interno creando le proprie pertinenze come giardini e cantine.
Al suo interno si trovano alcuni affreschi sui soffitti, travi a vista a nuovo, pareti in pietra e una grande cantina con volte a mattoni.
Infine si trova anche un terreno adiacente di c.a. 360 mq. quantificato in parte ad euro 30.000,00
- PropostaOffro
- ContrattoVendita
- Prezzo115.000,00 €
- Vani10
- Numero piani2
- Mq totali450
- GiardinoPrivato
- Tipologia immobileRustico / casale
- ProvinciaPavia
- ComuneRetorbido
- Data18-08-2025 05:21:08
- CodiceEA-04DCCB











