Rustico / Casale 10 vani 513mq

Dati annuncio : Vendita Rustico / Casale, Cisano Bergamasco
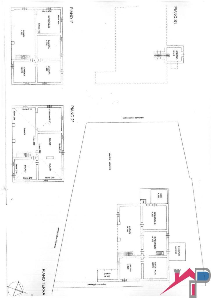
Cisano Bergamasco in prossimità dell´ingresso del paese, al confine con Brivio si propone un ampio cascinale indipendente da ristrutturare, l´immobile disposto su 3 livelli dispone di ampi spazi abitativi da recuperare ideali anche per più nuclei familiari, dotati di caratteristici porticati recuperabili e sfruttabili, oltre ad una caratteristica corte interna ed un´area giardino esclusiva. L´immobile va restaurato completamente, ottima soluzione per il recupero della pietra e del legno che caratterizzano questo tipo di costruzione, ideale per ampi spazi abitativi ma anche per uffici di rappresentanza o per eventuale trasformazione in spazio commerciale. L´immobile é posto su 3 livelli, al piano terreno troviamo un ampio porticato, una cucina, 3 ampi locali, un servizio; al Primo piano troviamo un ampio loggiato che da accesso a 4 ampi locali; al 2° piano troviamo un altro loggiato e un ampio sottotetto recuperabile viste le altezze generose. L´immobile é libero e subito disponibile. Soluzione ideale per sfruttare gli attuali incentivi sulla ristrutturazione.
- PropostaOffro
- ContrattoVendita
- Prezzo270.000,00 €
- Vani10
- Mq totali513
- Camere8
- Bagni1
- Classe energeticaG
- Classe energetica (ipe)4508
- Classe energetica (unità di misura)Kwh/m²a
- StatoDa ristrutturare
- CucinaCucina abitabile
- GiardinoPrivato
- Tipologia immobileRustico / casale
- ProvinciaBergamo
- ComuneCisano bergamasco
- Data18-08-2025 05:21:08
- CodiceEA-595F2E











