Rustico / Casale 400mq

Dati annuncio : Vendita Rustico / Casale, Civitella Casanova
Nel comune di Civitella Casanova, precisamente in Contrada Vallone, a circa 2.5 km dal centro dell´abitato, proponiamo in vendita una proprietà composta da due fabbricati per un totale di circa 400 mq ed un terreno di circa 10 ha, con circa 600 piante di ulivo.
Gli immobili sono accatastati per 160 mq. come abitativo, il resto è composto da magazzini, cantine, stalle e fienili.
A seguito dei danni del terremoto del 2016, l´immobile è stato riconosciuto come inagibile. Pertanto è possibile sfruttare le agevolazioni del Sisma Bonus - Superbonus 110%, con il quale è possibile ottenere l´autorizzazione a demolire e ricostruire la cubatura attualmente presente, anche in diversa posizione all´interno del terreno. Rinunciando ai contributi di ricostruzione, è possibile ottenere il c.d. ´´Superbonus Rafforzato´´, ottenendo un ulteriore 50% in più di agevolazione fiscale.
Per maggiori informazioni e per concordare una vista, è disponibile la sig.ra Marina Felsani al numero 335/8316959.
- PropostaOffro
- ContrattoVendita
- Prezzo230.000,00 €
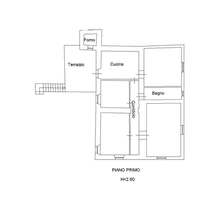
- Mq totali400
- Camere3
- Bagni1
- CucinaCucina abitabile
- GiardinoPrivato
- Tipologia immobileRustico / casale
- ProvinciaPescara
- ComuneCivitella casanova
- Data18-08-2025 05:21:08
- CodiceEA-DD2E76











