SANT´ANGELO A LECORE 5 vani 230mq
460.000,00 €
0 Piace
0 Piace
Dati annuncio : Vendita Pentavani, Campi Bisenzio
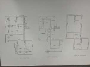
Sant´Angelo a Lecore, in zona tranquilla e nel verde, prossima realizzazione di villino libero su tre lati di 230 mq. ca. composto al piano terra da un garage di 25 mq. Internamente dal garage si accede al primo piano composto da grande soggiorno di 37 mq. con angolo cottura con porte finestre su due terrazzi, 3 camere , bagno finestrato più sottotetto ad uso soffitta. Il villino è circondato su tre lati da un porticato e da un giardino privato di 450 mq. L´immobile sarà fornito di impianto fotovoltaico, pompa di calore e riscaldamento a pavimento. La consegna è prevista a fine 2025 inizio 2026. Classe energetica A. Prezzo richiesto 460000 Classe Energetica: A1 - IPE: 0.00kWh/mq anno
- PropostaOffro
- ContrattoVendita
- Prezzo460.000,00 €
- Vani5
- Numero piani2
- Piano13
- Mq box25
- Mq giardino450
- Mq totali230
- Camere3
- Bagni1
- Posti auto1
- Classe energeticaA1
- StatoNuovo
- AscensoreNo
- Tipo costruzioneResidenziale
- CucinaAngolo cottura
- TerrazzoSi
- GiardinoPrivato
- CantinaNo
- RiscaldamentoAutonomo
- ArrediNon arredato
- BoxBox singolo
- DisponibilitLibero
- ProvinciaFirenze
- ComuneCampi bisenzio
- Data18-08-2025 06:03:15
- CodiceEA-99A1E0








