Sedriano 500mq
100.000,00 €

0 Piace
0 Piace
Dati annuncio : Vendita Loft, mansarde e attici, Sedriano
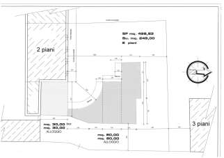
Sedriano, in posizione centrale e ben servita da tutti i negozi, vicinanza scuole e trasporti pubblici.\nTerreno edificabile di mq 500 circa con possibilità di edificare 200 mq su due livelli, con giardino privato e box.\nPerfetto per due famiglie che desiderano vivere vicine, ma con la possibilità di avere spazi separati per la propria indipendenza.\nQuesto terreno offre un´opportunità unica per realizzare due abitazioni con giardino privato e ampi spazi comuni.\nSe desideri creare una casa per te e i tuoi cari, mantenendo al contempo la tua indipendenza, questo è il terreno che fa per te!\nContattaci per maggiori informazioni e per organizzare una visita.\n
- PropostaOffro
- ContrattoVendita
- Prezzo100.000,00 €
- Mq totali500
- Classe energeticaN.c.
- Tipo costruzione[residenziale, residenziale]
- GiardinoGiardino privato
- ProvinciaMilano
- ComuneSedriano
- Data12-07-2025 05:46:27
- CodiceEA-1A7E2F









