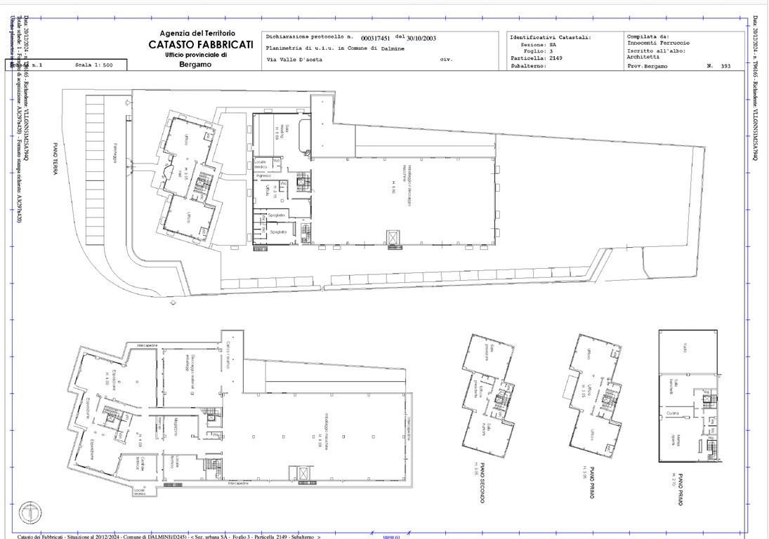
Stabile 1615mq

Dati annuncio : Affitto Stabile, Dalmine
Posizione strategica per la vicinanza al casello autostradale di Dalmine. Fronte Strada Provinciale 525, in contesto commerciale dinamico, si propone in locazione edificio direzionale (Cat.cat. D/7) di ottima immagine con vetrate a specchio di complessivi mq. 1.615 disposto su tre piani fuori terra oltre a piano interrato di mq. 670 ad uso archivio/show-room dotato di servizi igienici. Il piano terra di mq. 325 è composto da: elegante reception oltre uffici operativi e tre bagni, il piano primo di mq. 300 composto da: uffici operativi, quattro bagni, il piano secondo di mq. 320 composto da: da spazi dirigenziali con importante sala riunioni con zona ristoro e tre bagni. Tutti i piani sono collegati da scale e ascensore. Gli uffici sono molto luminosi, suddivisi in vani con pareti mobili, completi impianto elettrico a norma con corpi illuminanti, pavimento flottante, rete dati, impianto di riscaldamento-raffrescamento con contacalorie-frigorie, impianto d´allarme e cablaggio. Inclusi nella locazione gli arredi di alto livello qualitativo attualmente presenti. Sono inoltre annessi sul fronte dell´edificio n. 16 di posti auto riservati, il contesto è dotato di ampia disponibilità di parcheggio ad uso pubblico. A pochi passi dalla struttura è disponibile uno spazio ad anfiteatro perfetto per eventi e manifestazioni. Canone soggetto ad IVA.
- PropostaOffro
- ContrattoAffitto
- Prezzo12.500,00 €
- Numero piani3
- Mq totali1615
- Bagni11
- Classe energeticaD
- Classe energetica (ipe)34339
- Classe energetica (unità di misura)Kwh/m²a
- GiardinoPrivato
- Tipologia immobileStabile
- ProvinciaBergamo
- ComuneDalmine
- Data16-09-2025 05:29:59
- CodiceEA-652C38











