STICCIANO SCALO quadrilocale 94mq
90.000,00 €
0 Piace
0 Piace
Dati annuncio : Vendita Quadrivani, Roccastrada
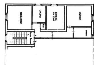
D/PD2663 - Nel centro storico a pochi chilometri dal mare e da Grosseto vendesi appartamento in piccola palazzina di quattro unita. L´appartamento posto al piano secondo ed ultimo senza ascensore è compost da 4,5 vani oltre ai due posti auto privati in corte condominiale. Buone sono le condizioni dell´appartamento ristrutturato nel 2006. Presente pozzo per il prelievo dell´acqua. Pronta consegna. Classe Energetica: - - IPE: 0.00kWh/mq anno
- PropostaOffro
- ContrattoVendita
- Prezzo90.000,00 €
- Vani4
- Numero piani2
- Piano255
- Mq totali94
- Camere2
- Bagni1
- StatoBuono
- AscensoreNo
- Tipo costruzioneResidenziale
- CucinaAbitabile
- TerrazzoNo
- GiardinoNessuno
- CantinaNo
- RiscaldamentoAutonomo
- ArrediParzialmente arredato
- BoxPosto auto esclusivo
- DisponibilitLibero
- Spese condominiali8
- Cadenza spese condominialiMensili
- ProvinciaGrosseto
- ComuneRoccastrada
- Data02-01-2026 06:38:44
- CodiceEA-6E1899











