Strada del Fienile 30 5 vani 550mq
130.000,00 €
0 Piace
0 Piace
Dati annuncio : Vendita Pentavani, Sorbolo Mezzani
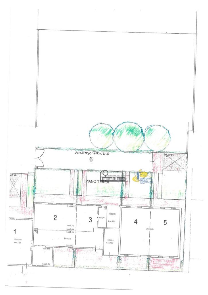
ADIACENZE SORBOLO nella frazione di Enzano vendiamo fabbricato da recuperare ove si possono realizzare circa 500 mq. di Superficie Utile con giardino privati e posti auto. Il progetto prevede cinque unità abitative di circa 100 mq. ciascuna. La richiesta economica è di € 130.000,00. Ulteriore possibilità edificatoria ex novo su lotto adiacente di altri 650 mq. di Superficie Utile che viene ceduto al costo di € 100.000,00. Disponiamo inoltre di tecnico pronto a presentare il progetto e a seguire i lavori. Per info Tel Molino 335-8486205
- PropostaOffro
- ContrattoVendita
- Prezzo130.000,00 €
- Anno1950
- Vani5
- Mq totali550
- Classe energeticaG
- Classe energetica (ipe)300.0
- StatoDa ristrutturare
- AscensoreNo
- TerrazzoNo
- GiardinoNs
- CantinaNo
- ProvinciaParma
- ComuneSorbolo mezzani
- IndirizzoStrada del fienile 30
- Data18-08-2025 05:07:34
- CodiceEA-E1A956

Immobilgest snc di feher istvan e molino filippo
Via Repubblica, 83 - Parma










