Strada delle Macchie 11 monolocale 1000mq
500,00 €
0 Piace
0 Piace
Dati annuncio : Vendita Monovano, San Benedetto del Tronto
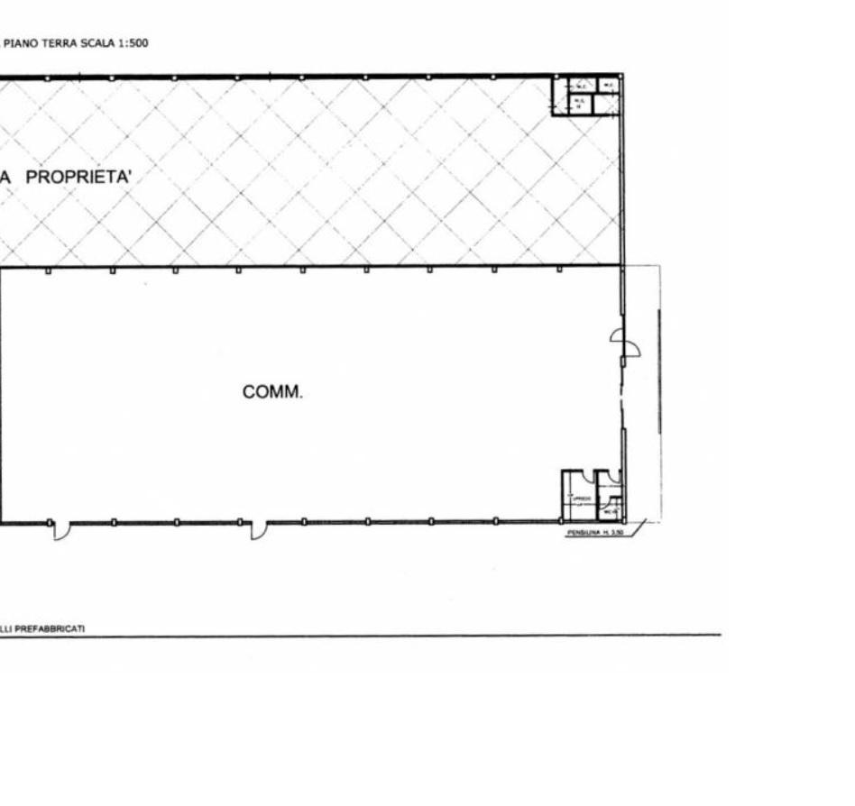
A Porto d´Ascoli, in strada delle Macchie, vendesi capannone ad uso commerciale in ottimo stato di conservazione di mq 1000, dotato di ampi spazi esterni adibiti a parcheggi. L´immobile, che presenta un´altezza sotto trave di 8,50 mt, è in vendita al prezzo di 500,00 €/mq con possibilità di frazionamento.
- PropostaOffro
- ContrattoVendita
- Prezzo500,00 €
- Vani1
- Numero piani1
- Mq totali1000
- Classe energetica (ipe)0.0
- AscensoreNo
- TerrazzoNo
- GiardinoNs
- CantinaNo
- ProvinciaAscoli piceno
- ComuneSan benedetto del tronto
- IndirizzoStrada delle macchie 11
- Data18-08-2025 05:07:34
- CodiceEA-139D6A




