Strada Nazionale per Carpi Nord 1260 1220mq
350.000,00 €
0 Piace
0 Piace
Dati annuncio : Vendita Terreni, Soliera
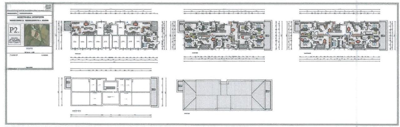
Alle porte di Modena a meno di 10 minuti in macchina dalla citta ed a meno di un chilometro dal centro commercialie ESSELUNGA di APPALTO (fraz.Modena), VENDESI lotto (1.220mq) di terreno edificabile con sovrastante rustico. Ipotesi di progetto fino a 11 UNITA´ per circa 1.200mq commerciali vendibili.
- PropostaOffro
- ContrattoVendita
- Prezzo350.000,00 €
- Numero piani1
- Mq totali1220
- Classe energeticaNa
- Classe energetica (ipe)0.0
- StatoRustico
- AscensoreNo
- TerrazzoNo
- GiardinoNs
- CantinaNo
- ProvinciaModena
- ComuneSoliera
- IndirizzoStrada nazionale per carpi nord 1260
- Data18-08-2025 05:07:34
- CodiceEA-E9DC1E






