E' in corso la verifica sull'accuratezza dei dati del post
Strada Torino 43/45 10 vani 253mq
375.000,00 €
0 Piace
0 Piace
Dati annuncio : Vendita Multivani, Orbassano
Immobiliare Azimut propone in vendita ad Orbassano in Strada Torino 43 all´interno dell´Europalace ufficio di 252 mq a reddito, locato a primario studio di ingegneria a un canone annuo di euro 30.000,00. Il contratto di locazione è appena stato rinnovato con contratto 6+6 con garanzia di non disdettabilità per i primi 6 anni.
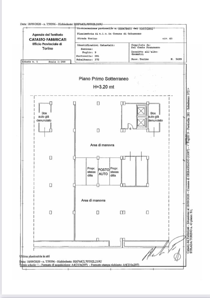
La posizione dell´ufficio si trova di fronte all´ingresso principale e quindi è dotato di ampia visibilità e privo di barriere architettoniche, internamente è un open-space che l´inquilino ha suddivido con pareti interne mobili. Completano la proprietà 2 posti auto raggiungibili con ascensore interno.
- PropostaOffro
- ContrattoVendita
- Prezzo375.000,00 €
- Vani10
- Numero piani1
- Mq totali253
- Bagni2
- Posti auto2
- Classe energeticaD
- Classe energetica (ipe)1999.99
- StatoOttimo
- AscensoreNo
- TerrazzoNo
- GiardinoNs
- CantinaNo
- RiscaldamentoAutonomo
- BoxSi
- Spese condominiali200.0
- ProvinciaTorino
- ComuneOrbassano
- IndirizzoStrada torino 43/45
- CodiceEA-BC9E93