Terreno 600mq
42.000,00 €
0 Piace
0 Piace
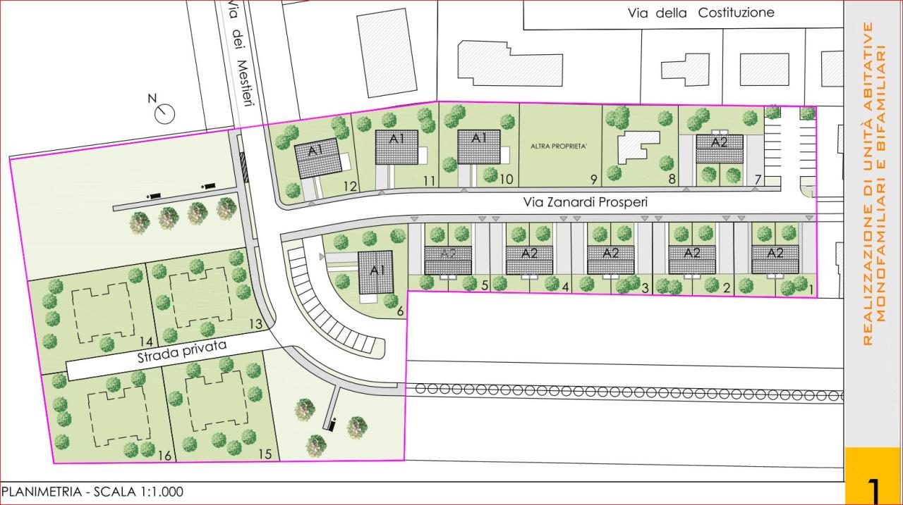
Dati annuncio : Vendita Terreno, Masi Torello
Lotti di terreno edificabili per case in classe A, in vendita a Masi Torello, Ferrara. Disponiamo di lotti di varie metrature (dai 500 ai 1000 mq.) in zona gi urbanizzata. Potete contattarci senza impegno per ottenere maggiori informazioni o per prenotare una visita per questi Lotti di terreno edificabili per case in classe A, in vendita a Masi Torello, Ferrara. Si allegano foto indicative di possibili realizzazioni. Cod. 2737. Prezzi a partire da euro 42.000. Ulteriori informazioni in ufficio. - SC9522335
- PropostaOffro
- ContrattoVendita
- Prezzo42.000,00 €
- Mq totali600
- AscensoreNo
- CantinaNo
- ArrediNo
- Cadenza spese condominialiAnnuali
- ProvinciaFerrara
- ComuneMasi torello
- Data17-12-2025 05:30:53
- CodiceEA-C2713B











