Terreno Residenziale 1700mq
270.000,00 €

0 Piace
0 Piace
Dati annuncio : Vendita Terreno Residenziale, Sarzana
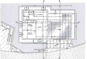
Loc. Nave, nella prima collina in posizione prestigiosa e soleggiata, terreno edificabile con progetto approvato per la realizzazione di villetta monofamiliare in bioedilizia disposta su due livelli composta da: PT cantine e garage con possibilità di creare taverna. P1 ingresso, cucina abitabile a vista su soggiorno con ampie vetrate, disimpegno, tre camere e doppi servizi. Ampia terrazza abitabile. Nel prezzo di acquisto è compresa la platea (già realizzata), oneri di costruzione, asservimento posti auto pagati, acconto del 30% a Wolf Haus per la fornitura della casa chiavi in mano (per ultimare l´immobile necessitano altri € 200000).
- PropostaOffro
- ContrattoVendita
- Prezzo270.000,00 €
- Mq totali1700
- Camere3
- Bagni2
- CucinaCucina a vista
- GiardinoPrivato
- Tipologia immobileTerreno residenziale
- ProvinciaLa spezia
- ComuneSarzana
- Data18-08-2025 05:21:08
- CodiceEA-F39DB9







