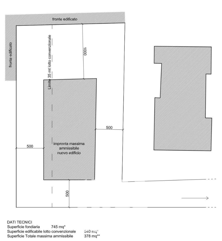
Terreno Residenziale 745mq
160.000,00 €

0 Piace
0 Piace
Dati annuncio : Vendita Terreno Residenziale, Cesena
CESENA Zona Stadio, in posizione tranquilla e riservata, si vende un terreno edificabile libero da fabbricati su cui realizzare una nuova costruzione residenziale monofamiliare, oppure una bifamiliare o al bisogno una trifamiliare. Ora il nuovo PUG classifica la zona come Bassa Densità (4.8.3), con vincolo di altezza 7,50 mt.
Per informazioni acasa_cesena: Andrea Placuzzi tel 328/8255174
NB le presenti informazioni non costituiscono elemento contrattuale
- PropostaOffro
- ContrattoVendita
- Prezzo160.000,00 €
- Mq totali745
- StatoNuova costruzione
- GiardinoPrivato
- Tipologia immobileTerreno residenziale
- ProvinciaForli-cesena
- ComuneCesena
- Data04-07-2025 05:13:47
- CodiceEA-D0B8A5







