Terreno Residenziale 839mq
90.000,00 €

0 Piace
0 Piace
Dati annuncio : Vendita Terreno Residenziale, Rivalta di Torino
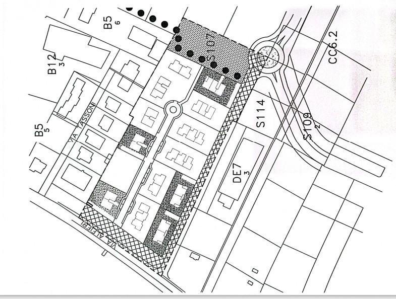
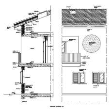
In zona molto commerciale proponiamo in vendita terreno edificabile con la possibilità di realizzare: delle ville o una piccola palazzina . Sul terreno è già stato approvato dal Comune di Rivalta Torinese il PEC SLP 372,54 mq superfice 836 mq Bimar 01143591
- PropostaOffro
- ContrattoVendita
- Prezzo90.000,00 €
- Mq totali839
- Tipologia immobileTerreno residenziale
- ProvinciaTorino
- ComuneRivalta di torino
- Data22-06-2025 05:54:48
- CodiceEA-73C311











