Terreno Residenziale quadrilocale 114mq

Dati annuncio : Vendita Terreno Residenziale, Alassio
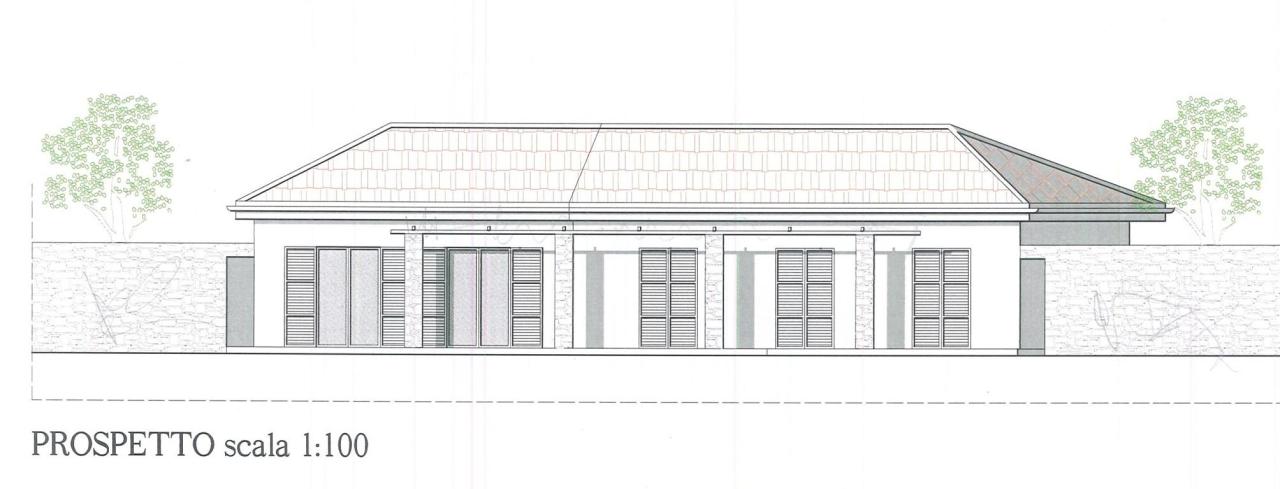
Alassio, ai piedi della frazione di Moglio, si propone in vendita un terreno, di circa 1.500 m², sul quale é prevista la costruzione di una villa, tutta su un piano terreno di circa 114 m². Il progetto prevede la realizzazione di un ampio soggiorno con angolo cottura, un bagno per la zona giorno, tre camere da letto, un altro bagno per la zona notte, disimpegno e un ripostiglio. Davanti al soggiorno é previsto un porticato, aperto, per creare una zona esterna ombreggiata per un terrazzo di ampie dimensioni. Come copertura é stato autorizzato un classico tetto a 4 falde con classici coppi liguri. Come parcheggio é stato pensato un doppio posto auto, ma nulla vieta di richiedere l´autorizzazione per costruire un box pertinenziale di 35 m². Il terreno sono in totale 3 fasce molto agevoli da percorrere, e secondo la mia opinione, adattissime per ospitare un impianto di pannelli solari e fotovoltaici per produzione di acqua calda e corrente elettrica. Il terreno é posizionato in direzione sud e dispone di una discreta vista mare e una ampia vista sulle colline alassine.
- PropostaOffro
- ContrattoVendita
- Prezzo180.000,00 €
- Vani4
- Mq totali114
- Camere3
- Bagni2
- CucinaAngolo cottura
- GiardinoPrivato
- PanoramaVista mare
- Tipologia immobileTerreno residenziale
- ProvinciaSavona
- ComuneAlassio
- Data18-08-2025 05:21:08
- CodiceEA-DDDDF9







