trilocale 200mq
Dati annuncio : Affitto Trivani, Santarcangelo di Romagna
Locale adatto alla ristorazione in dimora storica – Santarcangelo di Romagna
Nel cuore delle colline romagnole, nel Comune di Santarcangelo di Romagna, all’interno di una prestigiosa dimora storica del Seicento, proponiamo in locazione locale al piano terra, ideale per attività di ristorazione, enoteca, bistrot, ristorante di charme o location per eventi gastronomici.
L´immobile è una residenza storica immersa nel verde, che ha conservato nel tempo tutto il fascino originario, offrendo oggi un contesto di grande rappresentanza, perfetto per un progetto ristorativo di qualità.
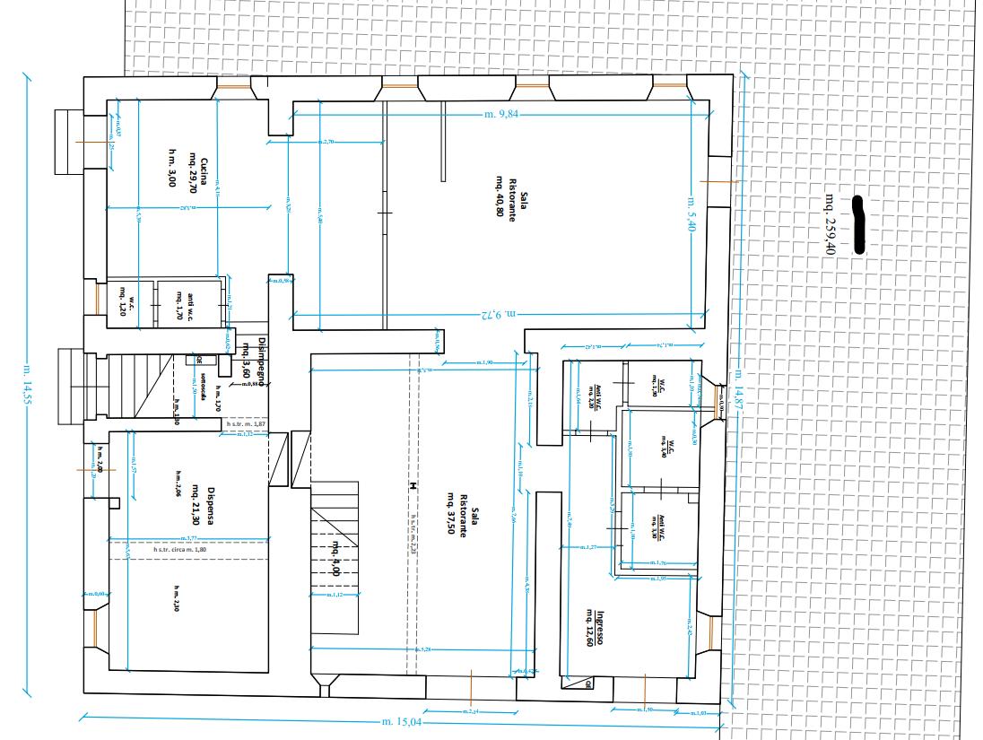
Spazi interni
Il locale comprende:
Piano terra con 2 ampie sale, cucina, dispensa, ingresso e 3 bagni
Piano interrato Cantina compresa nella locazione, ideale come sala degustazione, wine room o ambiente riservato
Capacità di accoglienza fino a 60 coperti interni
Gli ambienti si prestano perfettamente a una ristorazione che punta sull’esperienza, sull’atmosfera e sulla valorizzazione della tradizione culinaria.
Spazi esterni di grande valore
A completare la proprietà:
Parcheggio privato di circa 1.200 mq
Giardino di circa 750 mq, ideale per servizio estivo all’aperto
Area esterna piastrellata di circa 259 mq, perfetta per aperitivi, buffet e accoglienza clienti
Durante la bella stagione, gli spazi esterni consentono di ampliare l’attività con dehors, eventi e cene all’aperto in un contesto esclusivo e scenografico.
ℹ️ Condizioni di locazione
Canone mensile: € 2.000
Richiesta garanzia fideiussione bancaria
Una soluzione unica per chi desidera avviare o trasferire un’attività di ristorazione di livello, in una location storica di grande fascino, a pochi minuti dal centro di Santarcangelo di Romagna.
Per informazioni 347 8386641
- PropostaOffro
- ContrattoAffitto
- Prezzo2.000,00 €
- Vani3
- Numero piani1
- Mq box1200
- Mq giardino750
- Mq totali200
- Bagni3
- Classe energeticaVa
- Classe energetica (ipe)0.0
- AscensoreNo
- TerrazzoNo
- GiardinoNd
- CantinaNo
- BoxSi
- ProvinciaRimini
- ComuneSantarcangelo di romagna
- Data14-02-2026 06:35:43
- CodiceEA-CF10EC






