trilocale 70mq
Dati annuncio : Vendita Trivani, Fonte Nuova
In un nuovo complesso residenziale in fase di costruzione, offriamo in vendita diverse soluzioni abitative che includono giardino o terrazzo, posto auto, cantine e o box.
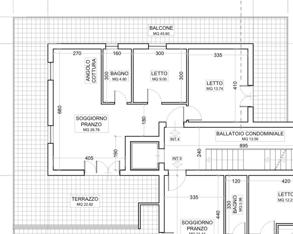
L´immobile in questione è un piano primo con soggiorno con ak , camera , cameretta e bagno, terrazzo perimetrale e balcone.
Gli appartamenti sono realizzati con materiali di pregio e offrono la possibilità di personalizzazione per soddisfare al meglio le esigenze dei futuri proprietari. Inoltre, gli immobili sono in classe energetica A4, garantendo un elevato risparmio energetico e un comfort abitativo ottimale. Contattaci per maggiori informazioni e per scoprire tutte le opzioni disponibili.Inoltre, per facilitare il passaggio alla vostra nuova casa, offriamo la possibilità di permuta indiretta gratuita, accollo di mutuo e mutui green, se sei under 36 puoi finanziare anche l 100% del prezzo dell´immobile
- PropostaOffro
- ContrattoVendita
- Prezzo219.000,00 €
- Anno2025
- Vani3
- Numero piani1
- Mq terrazzo70
- Mq totali70
- Camere2
- Bagni1
- Classe energeticaA+
- Classe energetica (ipe)0.0
- StatoIn costruzione
- AscensoreSi
- CucinaAngolo cottura
- TerrazzoSi
- GiardinoNs
- CantinaNo
- RiscaldamentoAutonomo
- ProvinciaRoma
- ComuneFonte nuova
- CodiceEA-CD3E42



