trilocale 80mq

Dati annuncio : Vendita Trivani, Muggio
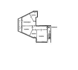
Rif. 3/358 l´abbruzzi gruppo immobiliare propone in muggio´, a pochi passi dal centro, 3 locali completamente ristrutturato recentemente sito al quarto ed ultimo piano senza ascensore in mini palazzina con tetto e facciata rifatti. Appartamento con tripla esposizione di mq. 80 composto da: ingresso soggiorno con affaccio sul balcone, cucina semi abitabile, due ampie camere da letto, bagno e cantina. Completa la soluzione posto auto condominiale.Al prezzo di euro 149.000, 00.Descrizione:pavimentazione in parquet, serramenti esterni in pvc doppio vetro, bagno in ceramica 1°scelta, porte interne in legno nuove, impianto idraulico rifatto nuovo, aria condizionata e riscaldamento centralizzato con termovalvole.L´abbruzzi gruppo immobiliare dialessandro l´abbruzzivia fiorani, 119 sesto s. Giovanni (mi)tel. 02. fax 02/gestiamo la vendita e la locazione dei vostri immobili commerciali, residenziali e industriali!
- PropostaOffro
- ContrattoVendita
- Prezzo149.000,00 €
- Anno1960
- Vani3
- Mq totali80
- Camere3
- Bagni1
- StatoOttime condizioni
- RiscaldamentoCentralizzato
- ArrediNon arredato
- ProvinciaMonza e brianza
- ComuneMuggio
- Indirizzo
- CodiceEA-808617






