trilocale 96mq
Dati annuncio : Vendita Trivani, Quartu Sant'Elena
Quartu Sant´Elena - Pressi Via Cagliari:
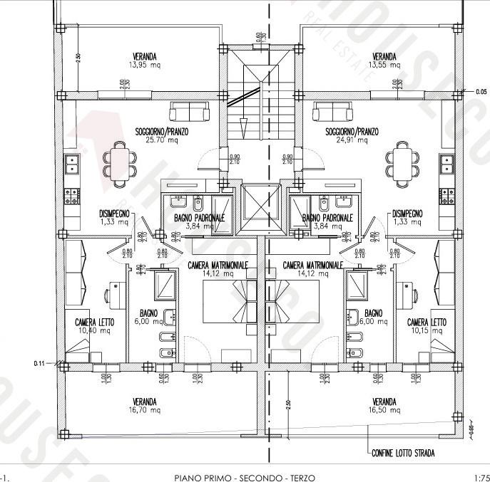
In zona servitissima e a pochi passi da tutti i servizi proponiamo in vendita due appartamenti, di nuova costruzione, al terzo piano di tipologia trilocale in un condominio di solo 6 unità abitative e servito da ascensore.
Ogni appartamento è progettato con cura per offrirti il massimo del comfort e sarà così composto:
-Zona living open-space con angolo cottura a vista, perfetta per momenti di relax e convivialità, che si apre su una veranda spaziosa di 14 mq
-Due camere da letto, di cui una matrimoniale e una singola, ideali per accogliere tutta la famiglia o per uno studio privato
-Un bagno, moderno e funzionale, per garantire comfort in ogni momento della giornata, con la possibilità di un secondo bagno.
-Una seconda veranda di circa 17 mq, uno spazio esterno ideale per godere del clima mediterraneo e realizzare il tuo angolo barbecue grazie alla predisposizione per la canna fumaria.
Ogni dettaglio è pensato per il risparmio energetico e il comfort:
-Climatizzazione multi split, per gestire la temperatura in ogni ambiente.
-Impianto fotovoltaico da 1,20/1,50 KW per una casa ecosostenibile.
-Videocitofono e scaldabagno a pompa di calore, per un´efficienza energetica superiore.
-Posto auto e cantina inclusi, con possibilità di acquistare un box auto separatamente.
Vivi la comodità, il risparmio e la tranquillità che solo una nuova costruzione può offrirti. Non perdere questa opportunità di acquistare una casa che ha tutto ciò che desideri.
Consegna prevista primavera 2027
Possibilità di scelta delle rifiniture da capitolato.
Classe energetica A.
Euro a partire da 238.000,00 + IVA.
- PropostaOffro
- ContrattoVendita
- Prezzo238.000,00 €
- Anno2024
- Vani3
- Numero piani1
- Mq box15
- Mq balconi31
- Mq totali96
- Camere2
- Bagni1
- Classe energeticaA
- Classe energetica (ipe)0.0
- StatoNuovo
- AscensoreSi
- TerrazzoNo
- GiardinoNs
- CantinaSi
- BoxSi
- ProvinciaCagliari
- ComuneQuartu sant'elena
- Data07-08-2025 06:04:34
- CodiceEA-F84132







