Ufficio 10 vani 281mq

Dati annuncio : Affitto Ufficio, Milano
MAGENTA/SANT´AMBROGIO adiacenze
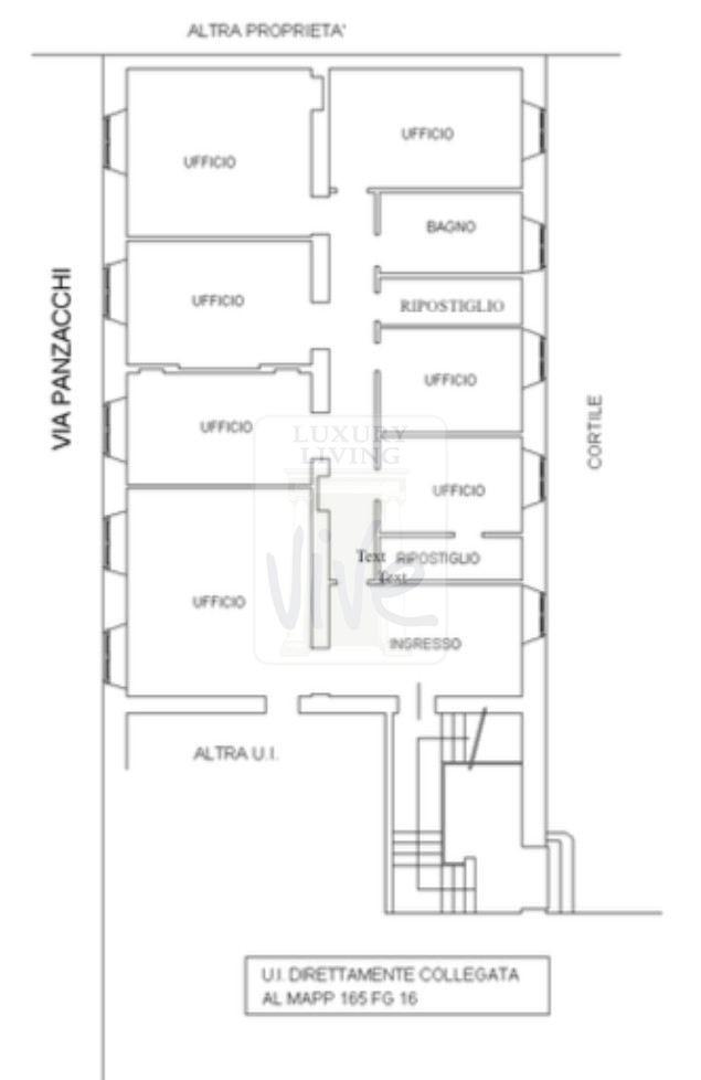
In un elegante stabile a pochi passi dalla Basilica di Santa Maria delle Grazie, in una delle zone più ambite della città Meneghina, proponiamo in locazione un ampio ufficio di mq 281 ca. disposto su due livelli, rialzato e interrato, con doppio affaccio su cortile interno e su un via molto tranquilla. Il piano rialzato è composto da ingresso con grande reception, un´ampia sala riunioni con camino, sei locali, ripostiglio e servizio, collegato al piano seminterrato da una scala interna dove troviamo altri tre grandi locali ed un ulteriore servizio. L´ufficio ha parquet, riscaldamento centralizzato e aria condizionata in tutti i locali. Lo stabile ha portineria. Libero subito. Canone di locazione annuo € 80.000 oltre a spese condominiali di € 8.600/anno. APE: D - KWh/m2a 387,94
- PropostaOffro
- ContrattoAffitto
- Prezzo6.670,00 €
- Vani10
- Mq totali281
- Camere7
- Bagni2
- Classe energeticaD
- Classe energetica (ipe)38794
- Classe energetica (unità di misura)Kwh/m²a
- RiscaldamentoCentralizzato
- Tipologia immobileUfficio
- ProvinciaMilano
- ComuneMilano
- Data30-01-2026 06:31:54
- CodiceEA-7AA3A2











