Ufficio 105mq

Dati annuncio : Affitto Ufficio, Ragusa
La Pronto Casa Group propone in locazione, ufficio al piano terra con ampie vetrine e doppio ingresso su due strade, in zona strategica e ben servita, a pochi passi da via Archimede.
L’immobile, di circa 100 mq, è ideale per studi medici, estetici, direzionali, professionisti, coworking o piccole realtà aziendali che desiderano uno spazio funzionale.
CARATTERISTICHE PRINCIPALI:
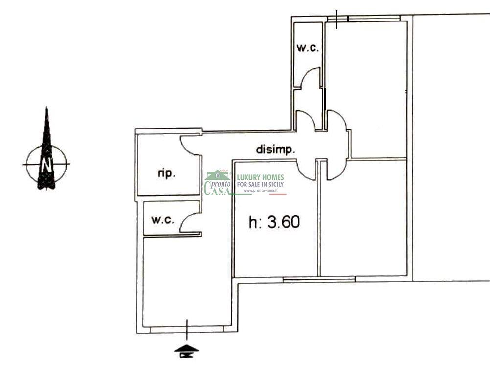
La superficie è ben distribuita e si compone in:
- Sala ingresso per area di accoglienza o sala d´attesa clienti, di circa 14 mq
- Tre stanze ufficio/studio privato di circa 18 mq ciascuna
- Due Servizi, uno con antibagno ed uno per disabili
- Ripostiglio/Magazzino
DOTAZIONI E PERTINENZE:
- Predisposizione per impianto climatico
- Ottima esposizione e luminosità
Non arredato.
L’ufficio si presta a molteplici soluzioni lavorative ed è perfetto per chi cerca uno spazio professionale riservato, strategicamente posizionato e dotato di comfort.
Per ulteriori informazioni contattare la filiale Pronto Casa Group - Point 3 via Carducci 207 Ragusa, al numero 0932/1885279. oppure visita il nostro sito.
- PropostaOffro
- ContrattoAffitto
- Prezzo750,00 €
- Mq totali105
- Camere3
- Bagni2
- ArrediArredato
- Tipologia immobileUfficio
- ProvinciaRagusa
- ComuneRagusa
- Data12-12-2025 05:13:47
- CodiceEA-A47C20











