Ufficio 12 vani 600mq
2.200,00 €
0 Piace
0 Piace
Dati annuncio : Affitto Ufficio, Monteprandone
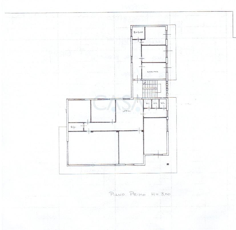
Nella zona Industriale di Centobuchi di Monteprandone a soli 200 mt dell´uscita della superstrada Ascoli-Mare, a 2 Km dal casello Autostradale di San Benedetto del Tronto proponiamo in affitto palazzina uffici della superficie totale di mq 600. La palazzina uffici disposta su due livelli di circa 300 mq circa cad. dove al piano primo troviamo i n. 8 uffici per la maggior parte dotati di aria condizionata e vari servizi igienici mentre al piano terra troviamo n. 2 locali ufficio, due ampi locali destinati a mensa e magazzino, adeguati allo svolgimento di attivit di deposito o di lavorazione oltre a servizi igienici. L´immobile risulta recintato con ampia zona di parcheggio. - SC9534354
- PropostaOffro
- ContrattoAffitto
- Prezzo2.200,00 €
- Vani12
- Numero piani2
- Piano2
- Mq totali600
- Bagni5
- Classe energeticaG
- Classe energetica (ipe)175 kwh/m3
- StatoBuono
- AscensoreNo
- CantinaNo
- RiscaldamentoAutonomo
- ArrediNo
- Cadenza spese condominialiAnnuali
- ProvinciaAscoli piceno
- ComuneMonteprandone
- Data17-12-2025 05:30:53
- CodiceEA-96DA32







