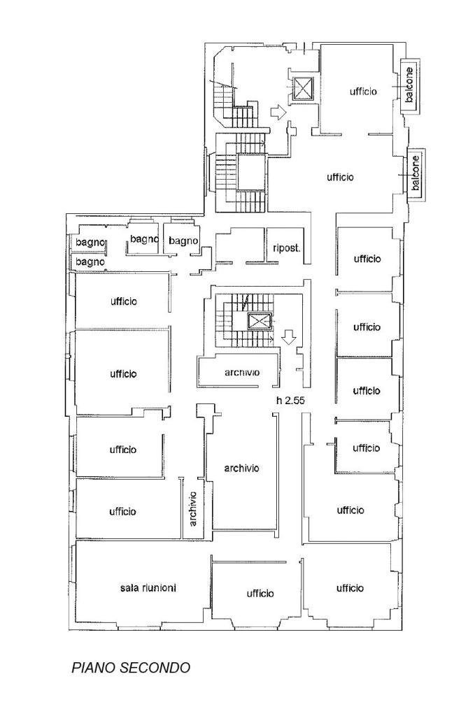
Ufficio 14 vani 530mq
16.416,00 €

0 Piace
0 Piace
Dati annuncio : Affitto Ufficio, Milano
C.so Sempione, a due passi dall´Arco della Pace e del Parco Sempione proponiamo in affitto in elegante condominio con servizio di portineria e doppi ascensori un ufficio di 530 mq composto da: quattordici locali oltre spazi archivi e quattro bagni, l´immobile si presenta in ottime condizioni e pronto all’uso; possibilità di posti auto.
La zona, una tra le più eleganti di Milano, è servita dai mezzi pubblici e facilmente raggiungibile dal centro città.
Il contratto di locazione richiede una fidejussione bancaria a prima richiesta.
La descrizione dell´unità immobiliare, così come tutti i suoi dati non costituiscono offerta contrattuale.
- PropostaOffro
- ContrattoAffitto
- Prezzo16.416,00 €
- Vani14
- Mq totali530
- Camere14
- Bagni4
- Classe energeticaF
- Classe energetica (ipe)175
- Classe energetica (unità di misura)Kwh/m²a
- Tipologia immobileUfficio
- ProvinciaMilano
- ComuneMilano
- Data03-12-2025 05:36:59
- CodiceEA-016706











