Ufficio 215mq

Dati annuncio : Vendita Ufficio, San Donato Milanese
Proponiamo in vendita soluzione ufficio unica! UFFICIO di 215 mq completamente ristrutturato e inserito in un contesto condominiale signorile con portineria.
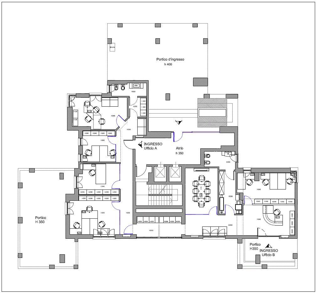
L’immobile è dotato di doppio ingresso con reception, tre uffici direzionali doppi e/o singoli, due uffici multi-postazione (sei postazioni), ampia sala riunioni, zona relax, due bagni e un terrazzo, per un totale di dodici postazioni.
L’ufficio è inoltre dotato di ingresso esterno riservato con cancello pedonale autonomo e citofono riservato.
FINITURE E DOTAZIONI: per la realizzazione sono state utilizzate ceramiche e rivestimenti di pregio, l’ufficio è dotato di ampie pareti vetrate, porte vetrate h 2,50, arredi su misura.
L’impianto di illuminazione è ad alto contenuto tecnologico ed estetico, serramenti in alluminio con taglio termico bicolore con doppi vetri, zanzariere, tapparelle motorizzate e centralizzate.
Casseforti, impianto telefonico di ultima generazione, rete telefonia/dati e impianto di allarme certificati, impianto di riscaldamento centralizzato con valvole termostatiche e contabilizzatori (con teleriscaldamento) ed impianto aria condizionata con pompa di calore autonomo.
L’immobile grazie ai due ingressi si presta ad una suddivisione in due uffici distinti, per questo in fase di ristrutturazione sono stati realizzati gli impianti elettrici con relativi quadri, di allarme, la motorizzazione delle tapparelle e l’impianto di condizionamento in maniera separata per agevolare l’eventuale suddivisione. L’immobile, sempre per lo stesso motivo è identificato catastalmente in due subalterni distinti che rispecchiano le due unità già suddivise.
Possibilità di acquisto di un magazzino/archivio e di box interni al condominio.
Immobile ben servito da mezzi pubblici, nelle immediate vicinanze M3 San Donato circa 600 m., facile accesso a Tangenziale Est e Linate.
CLASSE ENERGETICA: G
INDICE PRESTAZIONE ENERGETICA (IPE): 68,41 KWh/m³a
CHIAMACI SENZA IMPEGNO PER UNA VISITA 02.51628192.
Se devi VENDERE o AFFITTARE il tuo immobile non esitare a contattarci per una VALUTAZIONE GRAUITA e senza impegno: [email protected]
Inoltre grazie alla collaborazione con i nostri partners presenti da più di vent’anni sul territorio, POSSIAMO SEGUIRTI IN OGNI FASE TECNICA E AMMINISTRATIVA.
Ti seguiamo passo dopo passo per realizzare i tuoi sogni IN SICUREZZA.
SITO: www.treforimmobiliare.it
- PropostaOffro
- ContrattoVendita
- Prezzo700.000,00 €
- Mq totali215
- Classe energeticaG
- Classe energetica (ipe)6841
- Classe energetica (unità di misura)Kwh/m³a
- StatoRistrutturato
- RiscaldamentoCentralizzato
- PortineriaSi
- Tipologia immobileUfficio
- ProvinciaMilano
- ComuneSan donato milanese
- Data23-09-2025 05:21:07
- CodiceEA-453522











