Ufficio 230mq

Dati annuncio : Affitto Ufficio, San Donato Milanese
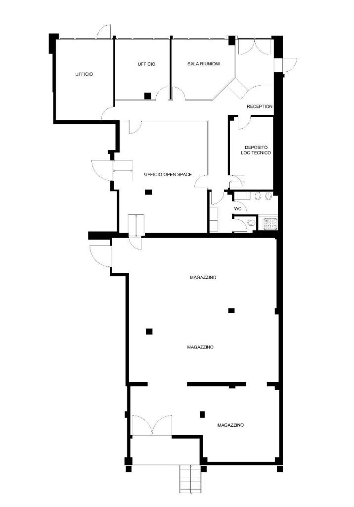
Proponiamo in locazione ufficio di 156 mq con annesso archivio/magazzino di 147 mq. sito in via Triulziana, 12 a San Donato Milanese. L’ufficio è completamente arredato ed è completo di impianto di rete con singole postazioni a pavimento dotate di attacco di rete e prese elettriche. L’ufficio è pronto per un immediato utilizzo.
La distribuzione interna dell’immobile è la seguente: ingresso con funzione di reception, ampia sala riunioni, 2 uffici direzionali molto luminosi ed un ampio open space con diverse postazioni di lavoro, doppi servizi igienici (uomo/donna) con elegante antibagno, locale tecnico ed ampio magazzino/archivio.
Si trova in un contesto di recente costruzione, facilmente raggiungibile tramite scalinata esterna o con il nuovo ascensore, che è stato recentemente sostituito, oltre che dalla rampa esterna e dal corsello per il carico e scarico delle merci.
L’immobile è dotato di nuovissimo impianto di riscaldamento autonomo in polpa di calore, aria condizionata e Uta, impianto di allarme, cablato.
Si trova in zona Metanopoli:
a circa 800 m dai palazzi ENI;
a circa 900 mt. dalla metropolitana MM3 linea gialla, stazione San Donato Mil.;
- a 2 km. dalla tangenziale EST, uscita Paullese o San Donato Milanese;
CLASSE ENERGETICA: D
INDICE PRESTAZIONE ENERGETICA (IPE): 751,17 kWh/m2a
CHIAMACI SENZA IMPEGNO PER UNA VISITA 02.51628192.
Se devi VENDERE o AFFITTARE il tuo immobile non esitare a contattarci per una VALUTAZIONE GRAUITA e senza impegno: [email protected]
Inoltre grazie alla collaborazione con i nostri partners presenti da più di vent’anni sul territorio, POSSIAMO SEGUIRTI IN OGNI FASE TECNICA E AMMINISTRATIVA.
Ti seguiamo passo dopo passo per realizzare i tuoi sogni IN SICUREZZA.
SITO: www.treforimmobiliare.it
- PropostaOffro
- ContrattoAffitto
- Prezzo3.500,00 €
- Mq totali230
- Classe energeticaD
- Classe energetica (ipe)75117
- Classe energetica (unità di misura)Kwh/m²a
- RiscaldamentoAutonomo
- ArrediArredato
- Tipologia immobileUfficio
- ProvinciaMilano
- ComuneSan donato milanese
- Data03-12-2025 05:36:59
- CodiceEA-CAE4B5











