Ufficio 457mq
3.600,00 €

0 Piace
0 Piace
Dati annuncio : Affitto Ufficio, Grassobbio
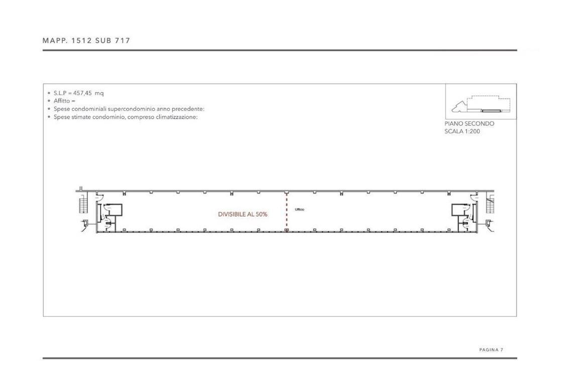
Situato in prossimità dell´aeroporto di Orio al Serio, fronte autostrada, all´interno di tre distinti edifici direzionali disposti su più livelli, è disponibile al 2° un ufficio di 457 mq in open space. L´ufficio è dotato doppio ingresso, di due blocchi servizi, con accesso per disabili, ed è equipaggiato con pavimento flottante, impianto elettrico base, impianto di riscaldamento-raffrescamento con rilevatori di consumo e trattamento dell´aria primaria. Sono disponibili posti auto coperti riservati e un´ampia area di parcheggio privato ad uso pubblico.
- PropostaOffro
- ContrattoAffitto
- Prezzo3.600,00 €
- Mq totali457
- Bagni6
- Tipologia immobileUfficio
- ProvinciaBergamo
- ComuneGrassobbio
- Data18-08-2025 05:21:08
- CodiceEA-DEAB34











