Ufficio 5 vani 160mq
2.100,00 €

0 Piace
0 Piace
Dati annuncio : Affitto Ufficio, Casalecchio di Reno
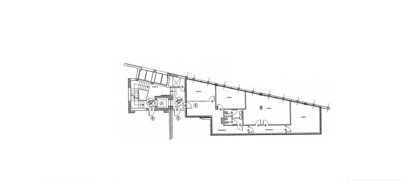
Casalecchio di Reno, in complesso direzionale comodo entrata autostrada e tangenziale, ufficio di circa 160 mq, attualmente diviso in 4 vani.
Doppi servizi.
Impianto di condizionamento e locali cablati.
Un posto auto riservato all´interno di garage coperto condominiale.
Possibilità di modificare la ripartizione degli spazi interni.
- PropostaOffro
- ContrattoAffitto
- Prezzo2.100,00 €
- Vani5
- Mq totali160
- Bagni2
- Tipologia immobileUfficio
- ProvinciaBologna
- ComuneCasalecchio di reno
- Data18-08-2025 05:21:08
- CodiceEA-39707D











