Ufficio 5 vani 250mq
2.500,00 €

0 Piace
0 Piace
Dati annuncio : Affitto Ufficio, Grassobbio
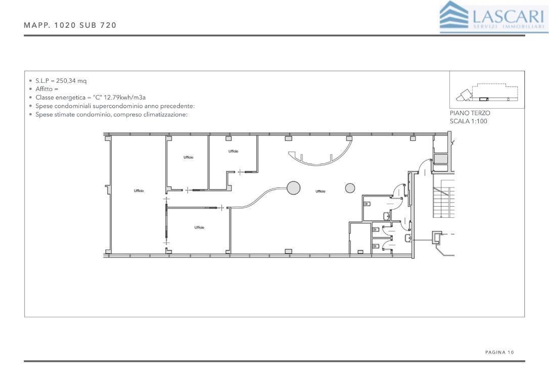
Posizione interessante, in prossimità dell´aeroporto di Orio al Serio, fronte autostrada, all´interno di tre distinti edifici direzionali disposti su più livelli, è disponibile al 3° piano, scala A, un ufficio arredato di 250 mq. L´ufficio è composto da un ampio open space e quattro vani separati, blocco servizi comprensivo di accesso per disabili. Viene consegnato con pavimento flottante, cablaggio, impianto elettrico-luci, impianto di riscaldamento-raffrescamento con rilevatori di consumo e trattamento dell´aria primaria. Sono disponibili posti auto coperti riservati e un´ampia area di parcheggio privato ad uso pubblico.
- PropostaOffro
- ContrattoAffitto
- Prezzo2.500,00 €
- Vani5
- Mq totali250
- Bagni3
- Classe energeticaC
- Classe energetica (ipe)1279
- Classe energetica (unità di misura)Kwh/m³a
- ArrediArredato
- Tipologia immobileUfficio
- ProvinciaBergamo
- ComuneGrassobbio
- Data22-06-2025 05:54:48
- CodiceEA-AE6734











