Ufficio 5 vani 88mq

Dati annuncio : Vendita Ufficio, Cesena
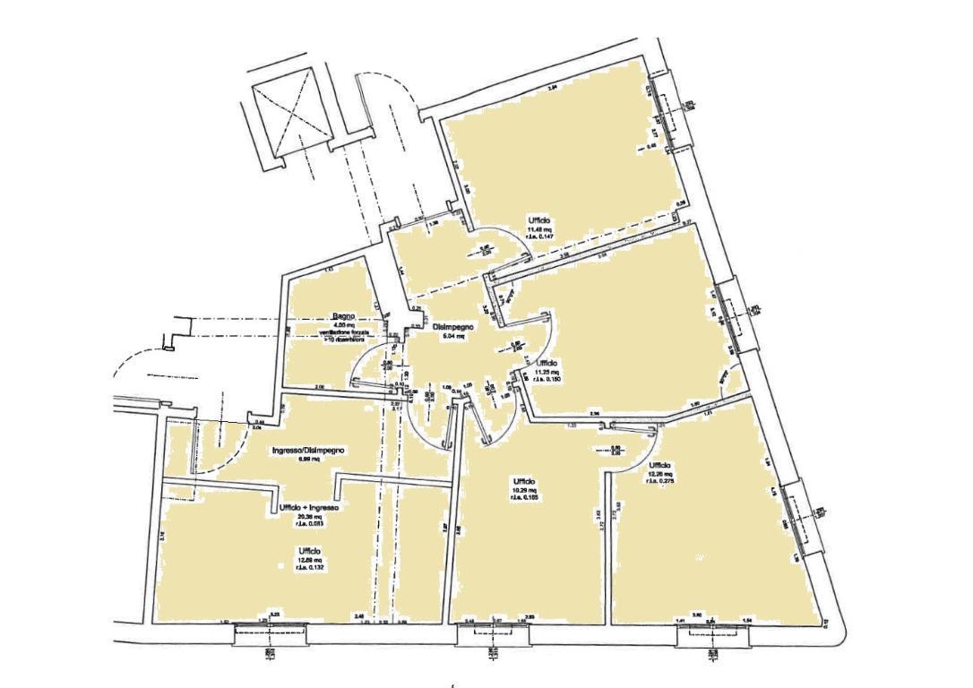
CESENA, in centro storico comunque fuori dalla zona a traffico limitato, si vende un ufficio ideale per i liberi professionisti. La soluzione è posta al primo piano di un fabbricato condominiale dotato di ascensore, ed è composta da cinque stanze ad uso ufficio, un disimpegno e un bagno dotato di ventilazione meccanica. Il doppio ingresso consente di utilizzare gli ambienti in maniera flessibile per più professionisti o per separare l´accesso dei clienti. Gli impianti sono funzionanti e a norma, il riscaldamento è condominiale del tipo centralizzato con contabilizzazione separata, la climatizzazione è autonoma. Le spese condominiali sono comprensive dei costi di riscaldamento e acqua. Lo stabile e l´ufficio sono in buone condizioni d´uso.
Per informazioni ACASA_CESENA: Andrea Placuzzi tel 328/8255174. Tutte le proposte su ACASA.INFO.
NB le presenti informazioni non costituiscono elemento contrattuale.
- PropostaOffro
- ContrattoVendita
- Prezzo145.000,00 €
- Vani5
- Mq totali88
- Bagni1
- Classe energeticaG
- Classe energetica (ipe)999
- Classe energetica (unità di misura)Kwh/m²a
- Tipologia immobileUfficio
- ProvinciaForli-cesena
- ComuneCesena
- Data04-07-2025 05:13:47
- CodiceEA-369C6A











