Ufficio 520mq
Dati annuncio : Affitto Ufficio, Capannori
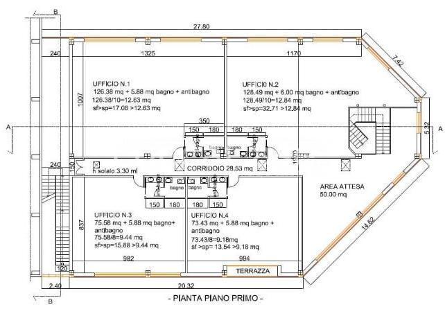
Rif.Ag. F338K - F338K - CAPANNORI FRONTE STRADA - Al piano primo di fabbricato di recente costruzione Vi proponiamo un ufficio attualmente open space allo stato grezzo di mq, 520, con l´ingresso indipendente. Le ampie superfici vetrate lo rendono luminosissimo - I tempi previsti per renderlo pronto all´uso sono stimati in 4/5 mesi, i lavori saranno eseguiti a cura e spesa della proprietà - Si valuta anche la possibilità di frazionarlo in tagli più piccoli dove ogni ufficio avrà un proprio bagno provato - Verranno istallate pompe di calore caldo freddo per ogni unità ( se separata e non intera) - Una generosa area a parcheggio, a comune con l´altra unità al piano terra, completa questa proprietà - Ape attualmente non presente perché trattasi di fabbricato al grezzo. Al canone va agguanta l´iva. - SC9036877
- PropostaOffro
- ContrattoAffitto
- Prezzo5.200,00 €
- Numero piani2
- Piano1
- Mq totali520
- StatoNuovo
- AscensoreNo
- CantinaNo
- ArrediNo
- Cadenza spese condominialiAnnuali
- ProvinciaLucca
- ComuneCapannori
- Data08-08-2025 05:36:38
- CodiceEA-BEDA07

