Ufficio 590mq
385.000,00 €

0 Piace
0 Piace
Dati annuncio : Vendita Ufficio, Udine
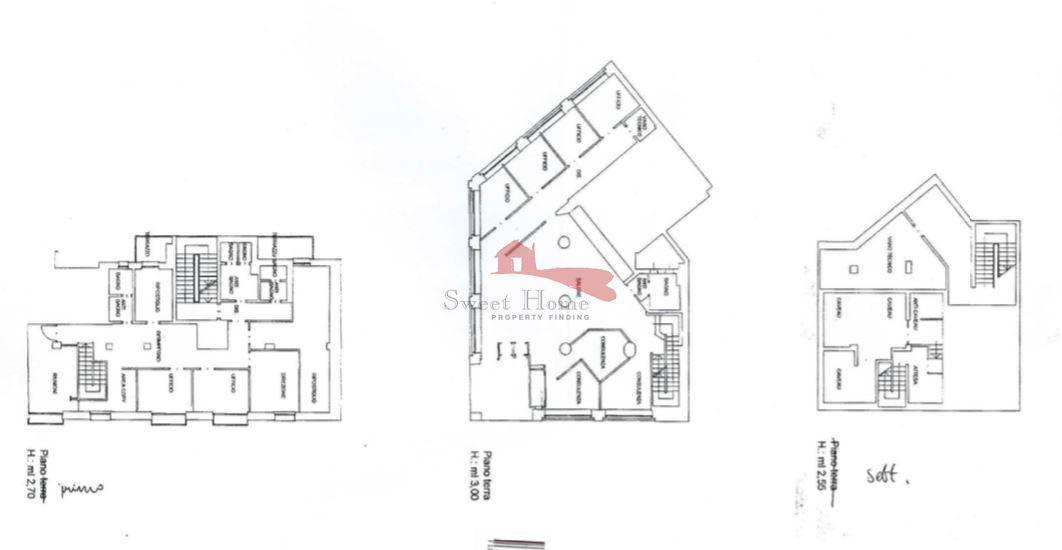
In zona di notevole passaggio, ad alta visibilità, ufficio disposto su tre piani: piano terra mq 264, piano primo 210 mq e piano interrato mq 113. Luminosissimo, parzialmente arredato con ampie vetrate, in ottimo stato di manutenzione.
- PropostaOffro
- ContrattoVendita
- Prezzo385.000,00 €
- Numero piani3
- Mq totali590
- Bagni5
- Classe energeticaC
- Classe energetica (ipe)10432
- Classe energetica (unità di misura)Kwh/m²a
- StatoOttimo stato
- ArrediArredato
- Tipologia immobileUfficio
- ProvinciaUdine
- ComuneUdine
- Data18-08-2025 05:21:08
- CodiceEA-E8B1EA











