Ufficio 68mq
Dati annuncio : Affitto Ufficio, Lucca
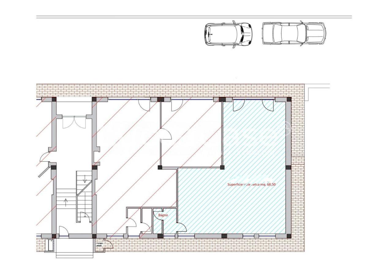
Rif.Ag. F470K - F470K - S.MARCO ( Lucca) - A pochi passi a piedi dal centro storico e dai primari servizi Vi proponiamo in affitto un fondo commerciale (C/1) costituito da un unico vano corredato da bagno e relativo antibagno, per una superficie complessiva utile netta interna di mq. 68,25, con accesso e vetrina su strada, attualmente a senso unico di marcia. I posti auto sono disponibili nell´area condominiale ´´di fronte al fondo, con accesso diretto dalla strada. Il fondo è dotato di impianti moderni: allaccio alla rete elettrica, connessione in fibra ottica e linea telefonica. Recentemente installato, il sistema di riscaldamento e condizionamento a pompa di calore assicura comfort tutto lanno. Inoltre, è collegato allacquedotto pubblico, condividendo lallaccio con il fondo adiacente L´immobile è visionabile e subito disponibile. Sono presenti spese condominiali forfettariamente quantificata in euro 100,00 annuali. Edificio in classe energetica C - Kwh/mq annuo 119,23 - SC9194649
- PropostaOffro
- ContrattoAffitto
- Prezzo850,00 €
- Numero piani3
- PianoT
- Mq totali68
- Bagni1
- Classe energetica (ipe)119 kwh/m2
- StatoBuono
- AscensoreNo
- CantinaNo
- ArrediNo
- Cadenza spese condominialiAnnuali
- ProvinciaLucca
- ComuneLucca
- Data10-09-2025 05:42:37
- CodiceEA-8E1733

