Ufficio 79mq
Dati annuncio : Vendita Ufficio, Massarosa
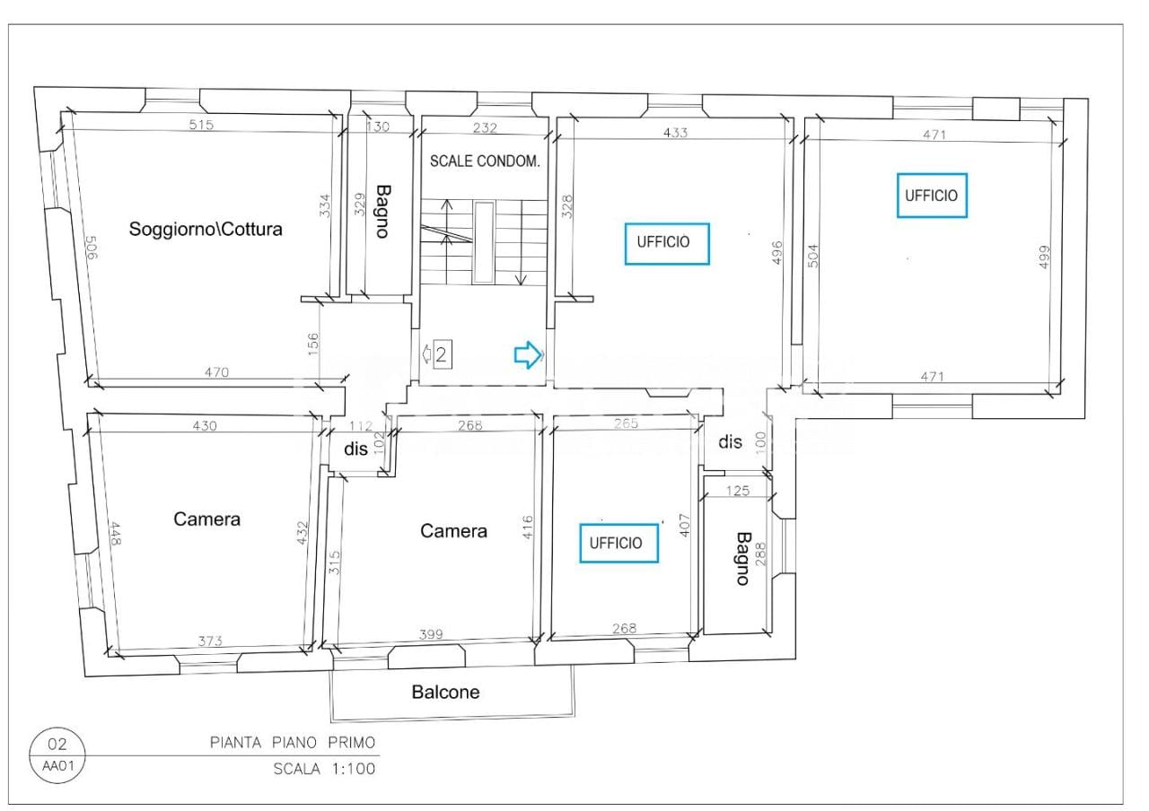
Rif.Ag. N232K - N232K - SEI ALLA RICERCA DEL TUO UFFICIO O VUOI FARE UN INVESTIMENTO ? COMUNE DI MASSAROSA ( Lucca) nel cuore della frazione di Quiesa, dove a due passi hai mezzi e negozi di prima necessità Ti propongo al piano primo di palazzina anni 30 interamente ristrutturata sia interamente che esternamete e di pochissime unità immobiliari, un ufficio di 79 mq commerciali. Ci accede allo stesso dalla doppia loggia condominiale, curatissima, è composto da tre vani, e servizio igienico con doccia finestrato. Gli ambienti, dalla tripla esposizione ( nord/sud/est) sono luminosi Possibilità di posto auto esclusivo ( il cui prezzo è di Euro 8.000) collocato sul lato sud nel fabbricato al quale si acese tramite sbarra elettrica Lufficio è dotato di split caldo/freddo in entrambi gli ambienti FINITURE : Portoncino dingresso blindato, infissi con doppi vetri pavimento in gres effetto legno, persiane in alluminio. Edificio in classe energetica B KhW/mq annuo 34, 51 La disponibilità è immediata - Si precsa che in prezzo indicato è relativi al solo ufficio. - SC9514682
- PropostaOffro
- ContrattoVendita
- Prezzo120.000,00 €
- Numero piani3
- Piano1
- Mq totali79
- Bagni1
- Classe energetica (ipe)34 kwh/m2
- StatoNuovo
- AscensoreNo
- CantinaNo
- ArrediNo
- Cadenza spese condominialiAnnuali
- ProvinciaLucca
- ComuneMassarosa
- Data11-12-2025 05:33:00
- CodiceEA-B70CD9









