Ufficio 86mq
Dati annuncio : Vendita Ufficio, Massarosa
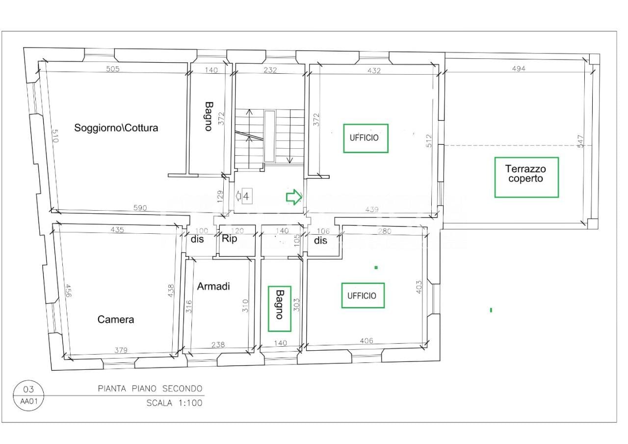
Rif.Ag. N233K - N233K - SEI ALLA RICERCA DEL TUO UFFICIO O VUOI FARE UN INVESTIMENTO ? COMUNE DI MASSAROSA ( Lucca) nel cuore della frazione di Quiesa, dove a due passi hai mezzi e negozi di prima necessità Ti propongo al piano secondo ed ultimo di palazzina anni 30 interamente ed esternamente ristrutturata e di pochissime unità immobiliari un ufficio di mq commerciale 56 corredato da bellissima ed esclusiva terrazza coperta di mq .30. Si accede allo stesso dalla doppia loggia condominiale, curatissima, è composto da due vani, e servizio igienico con doccia finestrato. Gli ambienti, dalla tripla esposizione (nord/sud/est) sono luminosi Possibilità di posto auto esclusivo (il cui prezzo è di Euro 8.000) collocato sul lato sud nel fabbricato al quale si acese tramite sbarra elettrica Lufficio è dotato di split caldo/freddo in entrambi gli ambienti FINITURE: Portoncino dingresso blindato, infissi con doppi vetri pavimento in gres effetto legno, persiane in alluminio. Edificio in classe energetica A/1 KhW/mq annuo 20, 25. La disponibilità è immediata Si precisa che il prezzo indicato NON comprende il posto auto ( da considerarsi a parte) - SC9514683
- PropostaOffro
- ContrattoVendita
- Prezzo115.000,00 €
- Numero piani3
- Piano2
- Mq totali86
- Bagni1
- Classe energetica (ipe)34 kwh/m2
- StatoNuovo
- AscensoreNo
- CantinaNo
- ArrediNo
- Cadenza spese condominialiAnnuali
- ProvinciaLucca
- ComuneMassarosa
- Data11-12-2025 05:33:00
- CodiceEA-0DAC5A

