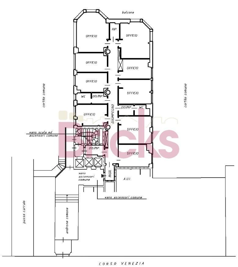
Ufficio 9 vani 270mq

Dati annuncio : Affitto Ufficio, Milano
270 M² - Corso Venezia (MM Palestro - MM Porta Venezia) - Affittiamo in prestigioso stabile, PIANO RIALZATO corpo interno, ufficio in ordine di circa 270 M², composto da 8 uffici di diverse dimensioni, sala riunione, doppi servizi e locale server, con possibilità di abbinare ulteriori 300 M² di ufficio al 1° piano (i due uffici non sono collegati internamente).
Pavimentazione in marmo e parquet, riscaldamento e aria condizionata canalizzati (incluso nell´importo delle spese condominiali), silenzioso, affaccio su un gradevole giardino condominiale, con presenza del custode.
CE Classe D - Kwh/m3a 33,35
Richiesta mensile € 10.417, 00+€1.350, 00 di spese condominiali
Richiesta annuale € 125.000, 00 + € 16.200,00 di spese condominiali
Per informazioni o chiarimenti contattare Anna +39 3479424966 - [email protected]
Tutte le indicazioni fornite negli annunci di vendita/locazione non costituiscono elemento contrattuale.
Bricks srl 02 5513268 - [email protected] - www.bricksitalia.com
- PropostaOffro
- ContrattoAffitto
- Prezzo10.417,00 €
- Vani9
- Mq totali270
- Camere8
- Bagni2
- Classe energeticaD
- Classe energetica (ipe)3335
- Classe energetica (unità di misura)Kwh/m³a
- Tipo costruzioneDi prestigio
- CucinaCucinotto
- Tipologia immobileUfficio
- ProvinciaMilano
- ComuneMilano
- Data01-11-2025 05:24:22
- CodiceEA-CB976F











