Ufficio 9 vani 922mq

Dati annuncio : Affitto Ufficio, Bergamo
Situato in una posizione strategica lungo la Strada Cremasca, il Centro Polifunzionale ´´Galassia´´ offre un accesso immediato all´Aeroporto di Orio al Serio e al casello autostradale di Bergamo. Questo edificio direzionale, di recente costruzione e sviluppato su quattro piani, è attualmente sede di rinomate aziende nei settori informatico, logistico, finanziario e fitness.
Caratteristiche dell´Ufficio:
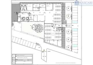
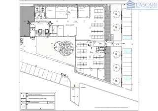
Superficie: 922 mq
Ingressi: Due ingressi separati per una gestione ottimale degli accessi.
Spazi Interni: Ampi open space con possibilità di parziali suddivisioni, progettati per favorire la collaborazione e la flessibilità lavorativa.
Aree di Servizio: Inclusa una break room, due gruppi servizi e locali tecnici.
Impiantistica e Dotazioni:
- Pavimento galleggiante per una migliore distribuzione degli impianti.
- Controsoffittatura per una gestione pratica degli spazi.
- Impianto elettrico standard, con una distribuzione adeguata delle prese di corrente.
- Sistema di illuminazione funzionale, che garantisce una luminosità adeguata per le attività lavorative quotidiane.
- Sistema di riscaldamento e raffrescamento con trattamento aria primaria, per un ambiente di lavoro confortevole in tutte le stagioni.
- Rete dati adatte alle esigenze aziendali.
- Impianto di sicurezza con allarme e antincendio, completo di rilevatori di fumi, per garantire la massima sicurezza.
Il canone di affitto comprende anche 10 posti auto, rendendo la struttura particolarmente comoda per i dipendenti e i visitatori.
Questa proposta è ideale per aziende che cercano un ambiente di lavoro pratico e ben collegato.
- PropostaOffro
- ContrattoAffitto
- Prezzo9.400,00 €
- Vani9
- Numero piani4
- Mq totali922
- Bagni3
- Posti auto10
- Classe energeticaC
- Classe energetica (ipe)20928
- Classe energetica (unità di misura)Kwh/m²a
- Tipologia immobileUfficio
- ProvinciaBergamo
- ComuneBergamo
- Data26-11-2025 06:33:05
- CodiceEA-8B49BF











