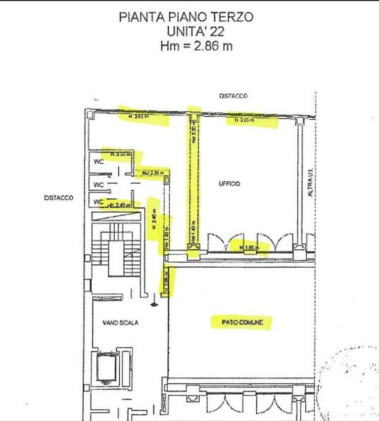
Ufficio bilocale 176mq
167.000,00 €

0 Piace
0 Piace
Dati annuncio : Vendita Ufficio, Bresso
BRESSO, VIA CAROLINA ROMANI, VENDESI UFFICIO DI 176 MQ ca.
Palazzina di recente costruzione, in stato moderno, vendesi ottimo ufficio situato al 3° piano di 176 Mq ca. composto da un open space più tripli servizi, mansardato. L´ immobile è da subito disponibile, dotato di portineria, citofono, riscaldamento, ascensore, cantina. IN VENDITA A 167.000 EURO.
- PropostaOffro
- ContrattoVendita
- Prezzo167.000,00 €
- Vani2
- Mq totali176
- Tipologia immobileUfficio
- ProvinciaMilano
- ComuneBresso
- Data23-10-2025 05:38:06
- CodiceEA-1B483E









