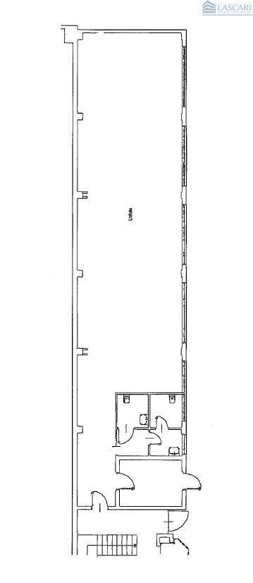
Ufficio monolocale 198mq
1.700,00 €

0 Piace
0 Piace
Dati annuncio : Affitto Ufficio, Grassobbio
Posizione strategica, nelle immediate vicinanze dell´aeroporto di Orio al Serio, con ottimi collegamenti alla Strada Statale 671 e all´Autostrada A4. In un complesso direzionale composto da tre edifici collegati, disposti su più livelli, è disponibile al piano terra un ufficio di 198 mq. in open space, con blocco servizi (incluso l´uso per disabili) e ripostiglio. L´unità è dotata di pavimento flottante con torrette, impianto elettrico con illuminazione a LED, rete dati, impianto di riscaldamento-raffrescamento con rilevatori di consumo e trattamento dell´aria primaria. Sono disponibili posti auto coperti riservati e un´ampia area di parcheggio privato ad uso pubblico.
- PropostaOffro
- ContrattoAffitto
- Prezzo1.700,00 €
- Vani1
- Mq totali198
- Bagni2
- Classe energeticaD
- Classe energetica (ipe)3375
- Classe energetica (unità di misura)Kwh/m³a
- Tipologia immobileUfficio
- ProvinciaBergamo
- ComuneGrassobbio
- Data01-09-2025 06:05:40
- CodiceEA-E14963











