Ufficio monolocale 72mq

Dati annuncio : Vendita Ufficio, Lodi
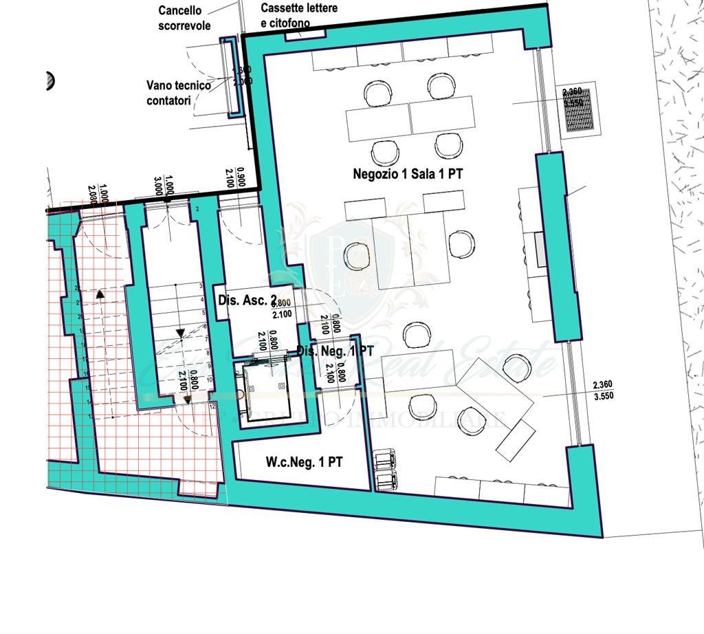
Lodi, in via XX Settembre nel cuore della città, nuovo intervento di ristrutturazione totale. In uno dei contesti più ricercati del centro città, intervento con consegna prevista per l’autunno 2026. L´ufficio di 72 mq è posto al piano terra, con ingresso indipendente, ed è così disposto: ingresso, locale con due ampie vetrina sulla via principale, disimpegno e bagno. L’intervento è orientato all’efficienza energetica e alla sostenibilità: l’immobile sarà in classe A, dotato di impianto di riscaldamento e raffreddamento a pavimento, VMC, serramenti con triplo vetro, videocitofono, impianto fotovoltaico da 3KW, GAS FREE, porta blindata, pavimento gres o parquet, impianto elettrico serie Bticino living now, predisposizione allarme e colonnine in tutti i box auto per veicoli elettrici.
Possibilità di scegliere finiture extra capitolato.
Per maggiori informazioni e visionare i progetti e il capitolato lavori chiama al +39 366-4461059 oppure 0371-1903125.
- PropostaOffro
- ContrattoVendita
- Prezzo205.200,00 €
- Vani1
- Mq totali72
- Bagni1
- Classe energeticaA1
- Classe energetica (ipe)4015
- Classe energetica (unità di misura)Kwh/m²a
- Tipologia immobileUfficio
- ProvinciaLodi
- ComuneLodi
- Data24-12-2025 06:28:50
- CodiceEA-030A3D











